Building Summary

Data last updated on: 4/2/2026     Ownership current as of: 3/30/2026     Tax Year: 2026
REID 108175

PIN # 0811-95-5583

Location Address Property Description
1020 ANDERSON ST PROP-KERNS TAMMY & ROBNET /LT#01 #01R #02AB #02-03 PL:000026-000056
   
Property Owner Owner's Mailing Address
FU, YOUTONG
1020 ANDERSON ST
DURHAM NC 27705
Parcel
Buildings
Misc Improvements
Land
Deeds
Notes
Sales
Photos
Map
Building Location Address
1020 ANDERSON ST
Building Description
RESMS-RES-MS-OR-EQ
Card   of  1
Bldg Type RESIDENTIAL
Units 1
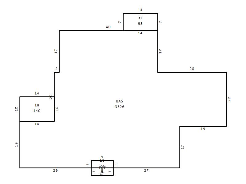
Living Area (SQFT) 3326
Number of Stories 1.00
Style RAN-RANCH
Foundation 04-P-FOOTING/CRWL-SP
Exterior 02-BRICK
Const Type
Heating 05-PACKAGE-HEAT/COOL
Air Cond
Plumbing Baths (Full):   3
Baths (Half):   0
Extra Fixtures:   0
Total Plumbing Fixtures:   9 
Bedrooms 3
Main Body (SQFT) 3326
Year Built 1950
Additions 5
Effective Year 1950
Remodeled 0
Interior Adj.
Other Features
Building Total & Improvement Details

Grade B- 115%
Percentage Complete 100
Total Adjusted Replacement Cost New $605,914
Physical Depreciation (% Bad) 0%
Depreciated Value $393,844
Economic Depreciation (% Bad) 0%
Functional Depreciation (% Bad) 0%
Total Depreciated Value $393,844
Market Area Factor 1.00
Building Value $393,844
Misc Improvements Value $41,304
Total Improvement Value $435,148

Assessed Land Value $712,272
   
Assessed Total Value $1,147,420



Addition Summary 
StoryTypeCodeArea
1.00 Terrace/Raised Patio 16T 27
1.00 Covered Porch 18 140
1.00 Covered Porch 18 27
1.00 Storage Utility 32 98
1.00 Unfinished Basement 10 670
 
Other Improvements 
UnitsDescriptionItemCodeYear% BadValue
800 SIZE Swimming Pool/Concrete 1970 50 31523
154 SIZE Greenhouse 1981 75 380
676 SIZE Carport w/Floor 1990 55 9401
 


Building Sketch
Photograph
Building Sketch Building Photo
(Click sketch for bigger image)




Copyright © 2022 Durham County, North Carolina.