Building Summary

Data last updated on: 4/2/2026     Ownership current as of: 3/30/2026     Tax Year: 2026
REID 180991

PIN # 0824-25-1521

Location Address Property Description
4545 KINLOCK DR LOCHAVEN HILLS/SEC:01/LT# 044 PL:00031B-000077
   
Property Owner Owner's Mailing Address
BAF ASSETS 2 LLC
3903 S CONGRESS AVE STE 40298
AUSTIN TX 78704
Parcel
Buildings
Misc Improvements
Land
Deeds
Notes
Sales
Photos
Map
Building Location Address
4545 KINLOCK DR
Building Description
RESMS-RES-MS-OR-EQ
Card   of  1
Bldg Type RESIDENTIAL
Units 1
Living Area (SQFT) 1475
Number of Stories 1.00
Style RAN-RANCH
Foundation 04-P-FOOTING/CRWL-SP
Exterior 02-BRICK
Const Type
Heating 05-PACKAGE-HEAT/COOL
Air Cond
Plumbing Baths (Full):   2
Baths (Half):   0
Extra Fixtures:   0
Total Plumbing Fixtures:   6 
Bedrooms 3
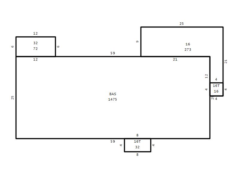
Main Body (SQFT) 1475
Year Built 1968
Additions 4
Effective Year 1968
Remodeled 0
Interior Adj.
Other Features
Building Total & Improvement Details

Grade C+ 110%
Percentage Complete 100
Total Adjusted Replacement Cost New $302,810
Physical Depreciation (% Bad) 0%
Depreciated Value $184,714
Economic Depreciation (% Bad) 0%
Functional Depreciation (% Bad) 0%
Total Depreciated Value $184,714
Market Area Factor 1.00
Building Value $184,714
Misc Improvements Value $5,841
Total Improvement Value $190,555

Assessed Land Value $91,875
   
Assessed Total Value $282,430



Addition Summary 
StoryTypeCodeArea
1.00 Frame Deck 16 273
1.00 Terrace/Raised Patio 16T 32
1.00 Storage Utility 32 72
1.00 Terrace/Raised Patio 16T 16
 
Other Improvements 
UnitsDescriptionItemCodeYear% BadValue
22x26 DIMENSIONS Carport w/Floor 1968 75 3452
14x18 DIMENSIONS Shop 1968 75 2167
20x14 DIMENSIONS Lean To 1968 75 222
 


Building Sketch
Photograph
Building Sketch Building Photo
(Click sketch for bigger image)




Copyright © 2022 Durham County, North Carolina.