Building Summary

Data last updated on: 4/2/2026     Ownership current as of: 3/30/2026     Tax Year: 2026
REID 108215

PIN # 0811-85-5658

Location Address Property Description
2256 CRANFORD RD DUKE UNIV LT-ALG CRANFORD /LT#12 & ADJ TRS PL:14-18
   
Property Owner Owner's Mailing Address
BRAUDE, ADAM M;BRAUDE, JULIE
2256 CRANFORD RD
DURHAM NC 27705
Parcel
Buildings
Misc Improvements
Land
Deeds
Notes
Sales
Photos
Map
Building Location Address
2256 CRANFORD RD
Building Description
RESFR-RES-FRM-OR-EQ
Card   of  1
Bldg Type RESIDENTIAL
Units 1
Living Area (SQFT) 2140
Number of Stories 2.00
Style COL-COLONIAL
Foundation 06-BASEMENT
Exterior 01-WOOD-PANEL
Const Type
Heating 05-PACKAGE-HEAT/COOL
Air Cond
Plumbing Baths (Full):   2
Baths (Half):   1
Extra Fixtures:   0
Total Plumbing Fixtures:   8 
Bedrooms 4
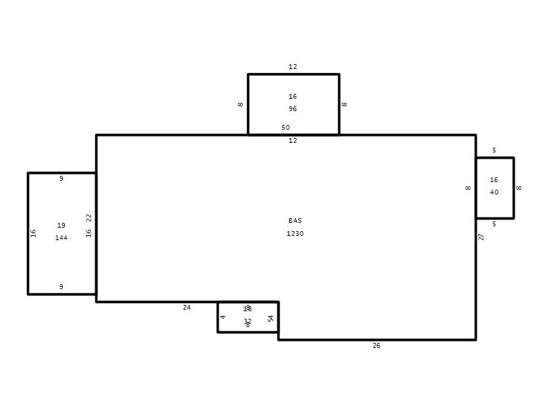
Main Body (SQFT) 1230
Year Built 1940
Additions 6
Effective Year 1940
Remodeled 0
Interior Adj.
Other Features
Building Total & Improvement Details

Grade C+ 110%
Percentage Complete 100
Total Adjusted Replacement Cost New $418,172
Physical Depreciation (% Bad) 0%
Depreciated Value $313,629
Economic Depreciation (% Bad) 0%
Functional Depreciation (% Bad) 0%
Total Depreciated Value $313,629
Market Area Factor 1.00
Building Value $313,629
Misc Improvements Value
Total Improvement Value $313,629

Assessed Land Value $561,450
   
Assessed Total Value $875,079



Addition Summary 
StoryTypeCodeArea
1.00 Covered Porch 18 32
1.00 Screen Porch 19 144
1.00 Frame Deck 16 96
1.00 Frame Deck 16 40
1.00 Unfinished Basement 10 800
1.00 Res Frame 2Nd Flr FR02 910
 
Other Improvements 
 


Building Sketch
Photograph
Building Sketch Building Photo
(Click sketch for bigger image)




Copyright © 2022 Durham County, North Carolina.