Building Summary

Data last updated on: 4/2/2026     Ownership current as of: 3/30/2026     Tax Year: 2026
REID 108219

PIN # 0811-85-9818

Location Address Property Description
2240 CRANFORD RD PROP-DUKE UNIV/LT#2240 PL:000161-000210
   
Property Owner Owner's Mailing Address
HENDRICKS FAMILY TRUST
199 PASA ROBLES AVE
LOS ALTOS CA 94022
Parcel
Buildings
Misc Improvements
Land
Deeds
Notes
Sales
Photos
Map
Building Location Address
2240 CRANFORD RD
Building Description
RESFR-RES-FRM-OR-EQ
Card   of  1
Bldg Type RESIDENTIAL
Units 1
Living Area (SQFT) 3524
Number of Stories 2.00
Style CON-CONVENTIONAL
Foundation 06-BASEMENT
Exterior 01-WOOD-PANEL
Const Type
Heating 05-PACKAGE-HEAT/COOL
Air Cond
Plumbing Baths (Full):   5
Baths (Half):   0
Extra Fixtures:   0
Total Plumbing Fixtures:   15 
Bedrooms 4
Main Body (SQFT) 1592
Year Built 1940
Additions 10
Effective Year 1940
Remodeled 0
Interior Adj.
Other Features
Building Total & Improvement Details

Grade B+ 135%
Percentage Complete 100
Total Adjusted Replacement Cost New $754,058
Physical Depreciation (% Bad) 0%
Depreciated Value $565,544
Economic Depreciation (% Bad) 0%
Functional Depreciation (% Bad) 0%
Total Depreciated Value $565,544
Market Area Factor 1.00
Building Value $565,544
Misc Improvements Value
Total Improvement Value $565,544

Assessed Land Value $527,250
   
Assessed Total Value $1,092,794



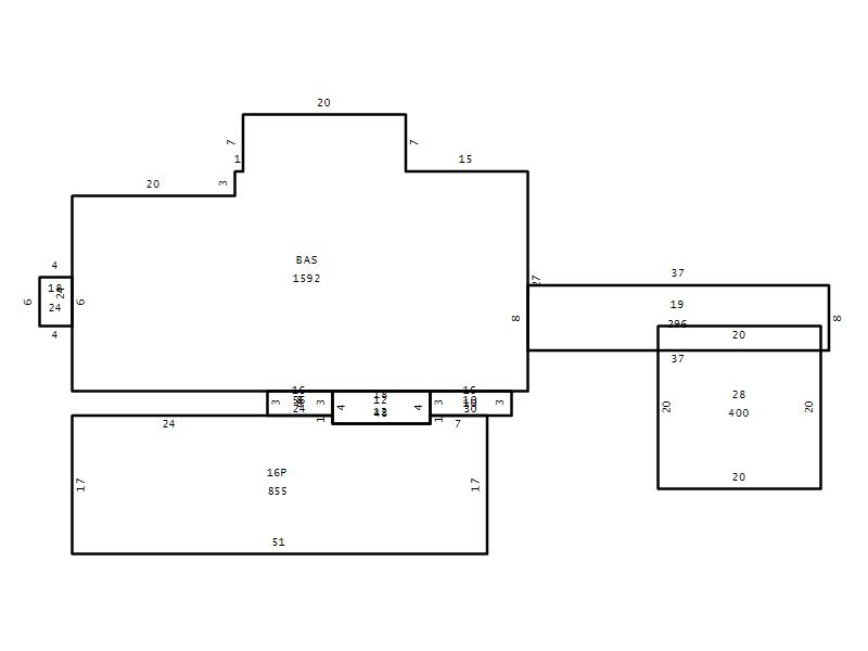
Addition Summary 
StoryTypeCodeArea
1.00 Frame Deck 16 24
1.00 Screen Porch 19 296
1.00 Garage 28 400
1.00 Patio 16P 855
1.00 Covered Porch 18 48
1.00 Frame Deck 16 30
1.00 Covered Porch 18 24
1.00 Res Frame 2Nd Flr FR02 1452
1.00 Unfinished Basement 10 972
1.00 Finished Basement 14 480
 
Other Improvements 
 


Building Sketch
Photograph
Building Sketch Building Photo
(Click sketch for bigger image)




Copyright © 2022 Durham County, North Carolina.