Building Summary

Data last updated on: 4/3/2026     Ownership current as of: 3/30/2026     Tax Year: 2026
REID 100829

PIN # 0822-45-8390

Location Address Property Description
1207 BERKELEY ST PROP-COBB-GLASS CO/BLK:49 /LT#B PL:000158-000377
   
Property Owner Owner's Mailing Address
KREMER, ALYSSA DANIELLE
1207 BERKELEY ST
DURHAM NC 27705
Parcel
Buildings
Misc Improvements
Land
Deeds
Notes
Sales
Photos
Map
Building Location Address
1207 BERKELEY ST
Building Description
RESFR-RES-FRM-OR-EQ
Card   of  1
Bldg Type RESIDENTIAL
Units 1
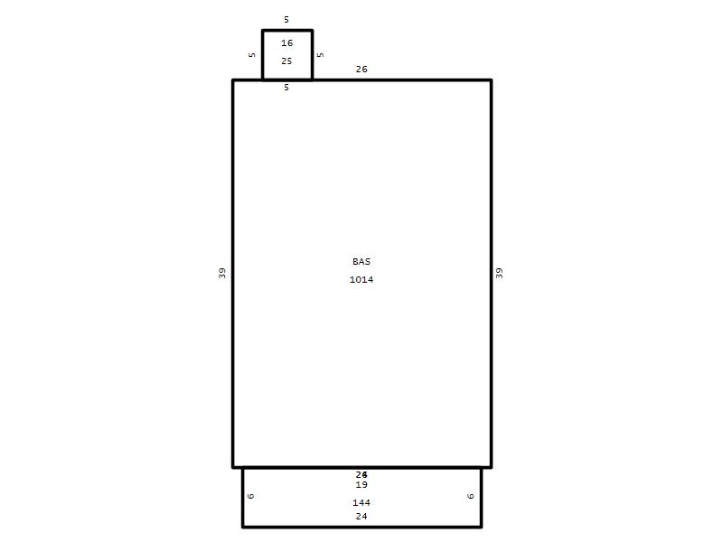
Living Area (SQFT) 1014
Number of Stories 1.00
Style RAN-RANCH
Foundation 04-P-FOOTING/CRWL-SP
Exterior 08-VINYL/ALUMINUM
Const Type
Heating 05-PACKAGE-HEAT/COOL
Air Cond
Plumbing Baths (Full):   2
Baths (Half):   0
Extra Fixtures:   0
Total Plumbing Fixtures:   6 
Bedrooms 3
Main Body (SQFT) 1014
Year Built 1999
Additions 2
Effective Year 1999
Remodeled 0
Interior Adj.
Other Features
Building Total & Improvement Details

Grade C 100%
Percentage Complete 100
Total Adjusted Replacement Cost New $205,191
Physical Depreciation (% Bad) 0%
Depreciated Value $157,997
Economic Depreciation (% Bad) 35%
Functional Depreciation (% Bad) 0%
Total Depreciated Value $102,698
Market Area Factor 1.00
Building Value $102,698
Misc Improvements Value
Total Improvement Value $102,698

Assessed Land Value $240,125
   
Assessed Total Value $342,823



Addition Summary 
StoryTypeCodeArea
1.00 Frame Deck 16 25
1.00 Screen Porch 19 144
 
Other Improvements 
 


Building Sketch
Photograph
Building Sketch Building Photo
(Click sketch for bigger image)




Copyright © 2022 Durham County, North Carolina.