Building Summary

Data last updated on: 4/2/2026     Ownership current as of: 3/30/2026     Tax Year: 2026
REID 182367

PIN # 0814-87-9771

Location Address Property Description
4834 NORTHBURY CIR HUNTINGTON PLACE/SEC:02/B LK:E/LT#11 PL:000060-000076
   
Property Owner Owner's Mailing Address
CRUTCHFIELD, DAVID BRADFORD;HALTER, DANIEL KEVIN
4834 NORTHBURY CIR
DURHAM NC 27712
Parcel
Buildings
Misc Improvements
Land
Deeds
Notes
Sales
Photos
Map
Building Location Address
4834 NORTHBURY CIR
Building Description
RESMS-RES-MS-OR-EQ
Card   of  1
Bldg Type RESIDENTIAL
Units 1
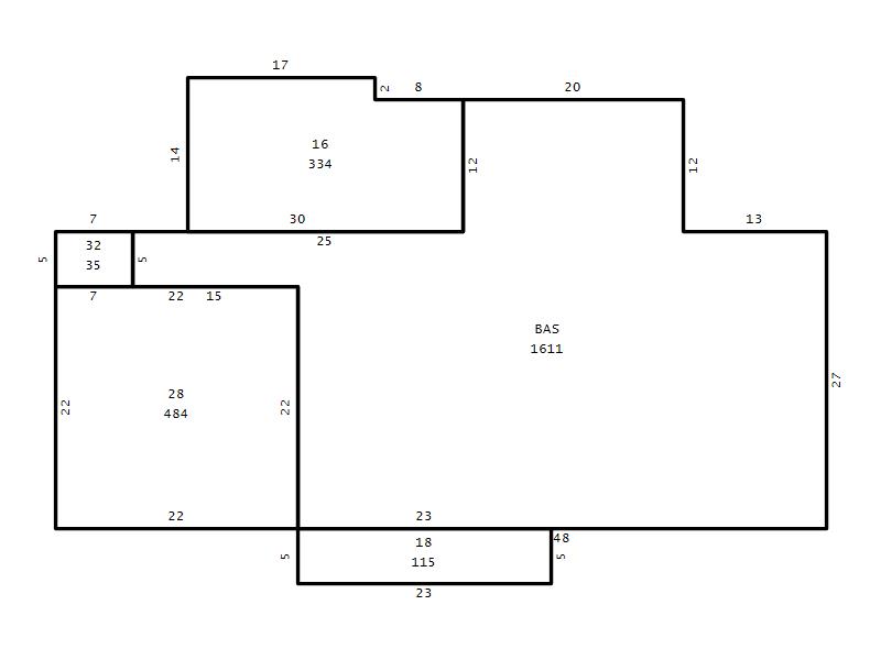
Living Area (SQFT) 1611
Number of Stories 1.00
Style RAN-RANCH
Foundation 04-P-FOOTING/CRWL-SP
Exterior 02-BRICK
Const Type
Heating 05-PACKAGE-HEAT/COOL
Air Cond
Plumbing Baths (Full):   1
Baths (Half):   1
Extra Fixtures:   0
Total Plumbing Fixtures:   5 
Bedrooms 3
Main Body (SQFT) 1611
Year Built 1982
Additions 4
Effective Year 1982
Remodeled 0
Interior Adj.
Other Features
Building Total & Improvement Details

Grade C+ 110%
Percentage Complete 100
Total Adjusted Replacement Cost New $360,400
Physical Depreciation (% Bad) 0%
Depreciated Value $245,072
Economic Depreciation (% Bad) 0%
Functional Depreciation (% Bad) 0%
Total Depreciated Value $245,072
Market Area Factor 1.00
Building Value $245,072
Misc Improvements Value
Total Improvement Value $245,072

Assessed Land Value $91,250
   
Assessed Total Value $336,322



Addition Summary 
StoryTypeCodeArea
1.00 Frame Deck 16 334
1.00 Covered Porch 18 115
1.00 Garage 28 484
1.00 Storage Utility 32 35
 
Other Improvements 
 


Building Sketch
Photograph
Building Sketch Building Photo
(Click sketch for bigger image)




Copyright © 2022 Durham County, North Carolina.