Building Summary

Data last updated on: 4/2/2026     Ownership current as of: 3/30/2026     Tax Year: 2026
REID 182391

PIN # 0814-88-8577

Location Address Property Description
1813 GRADY DR HUNTINGTON PLACE/SEC:02/B LK:C/LT#03 PL:000060-000076
   
Property Owner Owner's Mailing Address
JUAREZ, RAFAEL MARTINEZ
1813 GRADY DR
DURHAM NC 27712
Parcel
Buildings
Misc Improvements
Land
Deeds
Notes
Sales
Photos
Map
Building Location Address
1813 GRADY DR
Building Description
RESMS-RES-MS-OR-EQ
Card   of  1
Bldg Type RESIDENTIAL
Units 1
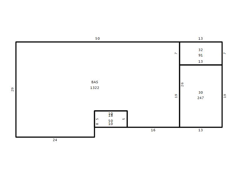
Living Area (SQFT) 1322
Number of Stories 1.00
Style RAN-RANCH
Foundation 04-P-FOOTING/CRWL-SP
Exterior 02-BRICK
Const Type
Heating 05-PACKAGE-HEAT/COOL
Air Cond
Plumbing Baths (Full):   2
Baths (Half):   0
Extra Fixtures:   0
Total Plumbing Fixtures:   6 
Bedrooms 3
Main Body (SQFT) 1322
Year Built 1970
Additions 3
Effective Year 1970
Remodeled 0
Interior Adj.
Other Features
Building Total & Improvement Details

Grade C 100%
Percentage Complete 100
Total Adjusted Replacement Cost New $261,638
Physical Depreciation (% Bad) 0%
Depreciated Value $162,216
Economic Depreciation (% Bad) 0%
Functional Depreciation (% Bad) 0%
Total Depreciated Value $162,216
Market Area Factor 1.00
Building Value $162,216
Misc Improvements Value
Total Improvement Value $162,216

Assessed Land Value $91,250
   
Assessed Total Value $253,466



Addition Summary 
StoryTypeCodeArea
1.00 Covered Porch 18 50
1.00 Carport 30 247
1.00 Storage Utility 32 91
 
Other Improvements 
 


Building Sketch
Photograph
Building Sketch Building Photo
(Click sketch for bigger image)




Copyright © 2022 Durham County, North Carolina.