Building Summary

Data last updated on: 4/2/2026     Ownership current as of: 3/30/2026     Tax Year: 2026
REID 182406

PIN # 0814-88-7125

Location Address Property Description
1821 HIDEAWAY LN HUNTINGTON PLACE/SEC:02/B LK:D/LT#05 PL:000060-000076
   
Property Owner Owner's Mailing Address
RAMIREZ, LINDA FRIEDMAN
1821 HIDEAWAY LN
DURHAM NC 27712
Parcel
Buildings
Misc Improvements
Land
Deeds
Notes
Sales
Photos
Map
Building Location Address
1821 HIDEAWAY LN
Building Description
RESMS-RES-MS-OR-EQ
Card   of  1
Bldg Type RESIDENTIAL
Units 1
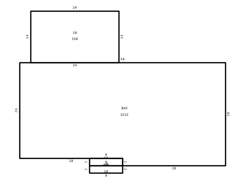
Living Area (SQFT) 1512
Number of Stories 1.00
Style RAN-RANCH
Foundation 04-P-FOOTING/CRWL-SP
Exterior 02-BRICK
Const Type
Heating 05-PACKAGE-HEAT/COOL
Air Cond
Plumbing Baths (Full):   2
Baths (Half):   0
Extra Fixtures:   0
Total Plumbing Fixtures:   6 
Bedrooms 3
Main Body (SQFT) 1512
Year Built 1970
Additions 3
Effective Year 1970
Remodeled 0
Interior Adj.
Other Features
Building Total & Improvement Details

Grade C+ 110%
Percentage Complete 100
Total Adjusted Replacement Cost New $320,910
Physical Depreciation (% Bad) 0%
Depreciated Value $198,964
Economic Depreciation (% Bad) 0%
Functional Depreciation (% Bad) 0%
Total Depreciated Value $198,964
Market Area Factor 1.00
Building Value $198,964
Misc Improvements Value $1,020
Total Improvement Value $199,984

Assessed Land Value $93,750
   
Assessed Total Value $293,734



Addition Summary 
StoryTypeCodeArea
1.00 Terrace/Raised Patio 16T 18
1.00 Covered Porch 18 18
1.00 Screen Porch 19 336
 
Other Improvements 
UnitsDescriptionItemCodeYear% BadValue
384 SIZE Shed (Open Pole) 1985 75 816
10x12 DIMENSIONS Shed (Open Pole) 1971 75 204
 


Building Sketch
Photograph
Building Sketch Building Photo
(Click sketch for bigger image)




Copyright © 2022 Durham County, North Carolina.