Building Summary

Data last updated on: 4/2/2026     Ownership current as of: 3/30/2026     Tax Year: 2026
REID 182558

PIN # 0814-88-6548

Location Address Property Description
1819 GRADY DR HERITAGE 02/PH:01/LT#35 PL:000136-000054
   
Property Owner Owner's Mailing Address
ZUNIGA, LUIS;ZUNIGA, CONSUELO ROQUE;ZUNIGA, CYNTHIA
1819 GRADY DR
DURHAM NC 27712
Parcel
Buildings
Misc Improvements
Land
Deeds
Notes
Sales
Photos
Map
Building Location Address
1819 GRADY DR
Building Description
RESMS-RES-MS-OR-EQ
Card   of  1
Bldg Type RESIDENTIAL
Units 1
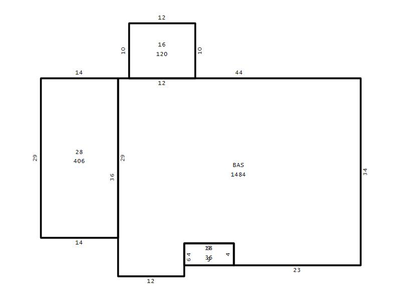
Living Area (SQFT) 1484
Number of Stories 1.00
Style RAN-RANCH
Foundation 04-P-FOOTING/CRWL-SP
Exterior 02-BRICK
Const Type
Heating 05-PACKAGE-HEAT/COOL
Air Cond
Plumbing Baths (Full):   2
Baths (Half):   0
Extra Fixtures:   0
Total Plumbing Fixtures:   6 
Bedrooms 3
Main Body (SQFT) 1484
Year Built 1998
Additions 3
Effective Year 1998
Remodeled 0
Interior Adj.
Other Features
Building Total & Improvement Details

Grade C+ 110%
Percentage Complete 100
Total Adjusted Replacement Cost New $325,848
Physical Depreciation (% Bad) 0%
Depreciated Value $247,644
Economic Depreciation (% Bad) 0%
Functional Depreciation (% Bad) 0%
Total Depreciated Value $247,644
Market Area Factor 1.00
Building Value $247,644
Misc Improvements Value $238
Total Improvement Value $247,882

Assessed Land Value $91,250
   
Assessed Total Value $339,132



Addition Summary 
StoryTypeCodeArea
1.00 Frame Deck 16 120
1.00 Covered Porch 18 36
1.00 Garage 28 406
 
Other Improvements 
UnitsDescriptionItemCodeYear% BadValue
10x14 DIMENSIONS Shed (Open Pole) 1999 75 238
 


Building Sketch
Photograph
Building Sketch Building Photo
(Click sketch for bigger image)




Copyright © 2022 Durham County, North Carolina.