Building Summary

Data last updated on: 4/2/2026     Ownership current as of: 3/30/2026     Tax Year: 2026
REID 182716

PIN # 0824-09-5418

Location Address Property Description
1601 REDMOND DR BROGDEN HGHTS/SEC:04/BLK: A/LT#02 PL:000075-000053
   
Property Owner Owner's Mailing Address
GOMEZ, RUBEN GARCIA;GARCIA, SANDY DANAE SANTIAGO
1601 REDMOND DR
DURHAM NC 27712
Parcel
Buildings
Misc Improvements
Land
Deeds
Notes
Sales
Photos
Map
Building Location Address
1601 REDMOND DR
Building Description
RESMS-RES-MS-OR-EQ
Card   of  1
Bldg Type RESIDENTIAL
Units 1
Living Area (SQFT) 1740
Number of Stories 1.00
Style RAN-RANCH
Foundation 04-P-FOOTING/CRWL-SP
Exterior 02-BRICK
Const Type
Heating 05-PACKAGE-HEAT/COOL
Air Cond
Plumbing Baths (Full):   2
Baths (Half):   0
Extra Fixtures:   0
Total Plumbing Fixtures:   6 
Bedrooms 3
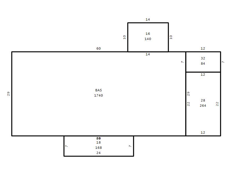
Main Body (SQFT) 1740
Year Built 1973
Additions 4
Effective Year 1973
Remodeled 0
Interior Adj.
Other Features
Building Total & Improvement Details

Grade C+ 110%
Percentage Complete 100
Total Adjusted Replacement Cost New $368,385
Physical Depreciation (% Bad) 0%
Depreciated Value $309,443
Economic Depreciation (% Bad) 0%
Functional Depreciation (% Bad) 0%
Total Depreciated Value $309,443
Market Area Factor 1.00
Building Value $309,443
Misc Improvements Value $266
Total Improvement Value $309,709

Assessed Land Value $96,875
   
Assessed Total Value $406,584



Addition Summary 
StoryTypeCodeArea
1.00 Frame Deck 16 140
1.00 Covered Porch 18 168
1.00 Garage 28 264
1.00 Storage Utility 32 84
 
Other Improvements 
UnitsDescriptionItemCodeYear% BadValue
10x16 DIMENSIONS Shed (Open Pole) 1992 75 266
 


Building Sketch
Photograph
Building Sketch Building Photo
(Click sketch for bigger image)




Copyright © 2022 Durham County, North Carolina.