Building Summary

Data last updated on: 3/31/2026     Ownership current as of: 3/26/2026     Tax Year: 2026
REID 108514

PIN # 0821-25-5934

Location Address Property Description
1733 MOREHEAD AVE PROP-MILES & PENCO/MOREHE AD AVE PROP/LT#01 SMALL PL:000184-000177
   
Property Owner Owner's Mailing Address
JIN, QI
3401 OCEAN PARK BLVD #103
SANTA MONICA CA 90405
Parcel
Buildings
Misc Improvements
Land
Deeds
Notes
Sales
Photos
Map
Building Location Address
1733 MOREHEAD AVE
Card   of  1        Section   of  1
Building Details

Building Name APARTMENT GARDEN MASONRY
Primary Occupancy Type COMMERCIAL
Primary Occupancy 01M-APT-GARDEN-MASON
Primary Class H1M
Primary Quality C
Year Built 1960
Effective Year 1960
Physical Depreciation (Rating) CGW-CDU PERCENTAGE
Physical Depreciation (% Bad) 43.00%
Economic Depreciation (% Bad) 0%
Functional Depreciation (% Bad) 0%
Gross Leasable Area (SQFT) 3492
Remodeled Year
Total Stories

Section Details

Occupancy Type COMMERCIAL


Class H1M
Depreciation 43%
Depreciation CGW-CDU PERCENTAGE
Heat 15-HEAT-&-AC-COM
Occupancy 01M-APT-GARDEN-MASON
Quality C
Exterior Walls N/A-EXT-WALL
Building Total & Improvement Details

Total Adjusted Replacement Cost New $593,010
Physical Depreciation (% Bad) 43.00%
Depreciated Value $338,015
Economic Depreciation (% Bad) 0%
Functional Depreciation (% Bad) 0%
Total Depreciated Value $338,015
Market Area Factor 1.00
Building Value $338,015
Misc Improvements Value $6,925
Total Improvement Value $344,940

Assessed Land Value $280,000
   
Assessed Total Value $624,940


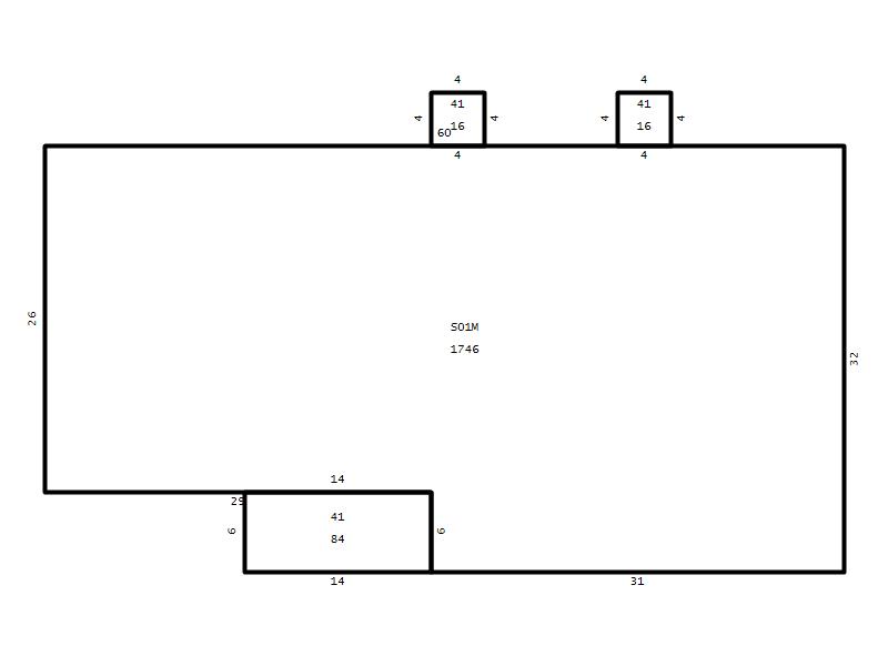
Addition Summary 
StoryTypeCodeArea
1.00 Canopy Commercial 41 84
1.00 Canopy Commercial 41 16
1.00 Canopy Commercial 41 16
1.00 Apartment Finished CF01 1746
 
Other Improvements 
UnitsDescriptionItemCodeYear% BadValue
2000 SIZE Asphalt Paving 1960 75 2125
3200 SIZE Concrete Paving 1960 75 4800
 


Building Sketch
Photograph
Building Sketch Building Photo
(Click sketch for bigger image)




Copyright © 2022 Durham County, North Carolina.