Building Summary

Data last updated on: 4/2/2026     Ownership current as of: 3/30/2026     Tax Year: 2026
REID 108684

PIN # 0821-07-7935

Location Address Property Description
713 ANDERSON ST PROP-DUKE UNIVERSITY LAND S PL:000012-000009
   
Property Owner Owner's Mailing Address
KEENAN, JEFFREY;KEENAN, ALLISON HIGGINS
713 ANDERSON ST
DURHAM NC 27701
Parcel
Buildings
Misc Improvements
Land
Deeds
Notes
Sales
Photos
Map
Building Location Address
713 ANDERSON ST
Building Description
RESMS-RES-MS-OR-EQ
Card   of  1
Bldg Type RESIDENTIAL
Units 1
Living Area (SQFT) 3588
Number of Stories 2.00
Style COL-COLONIAL
Foundation 04-P-FOOTING/CRWL-SP
Exterior 02-BRICK
Const Type
Heating 05-PACKAGE-HEAT/COOL
Air Cond
Plumbing Baths (Full):   2
Baths (Half):   1
Extra Fixtures:   0
Total Plumbing Fixtures:   8 
Bedrooms 4
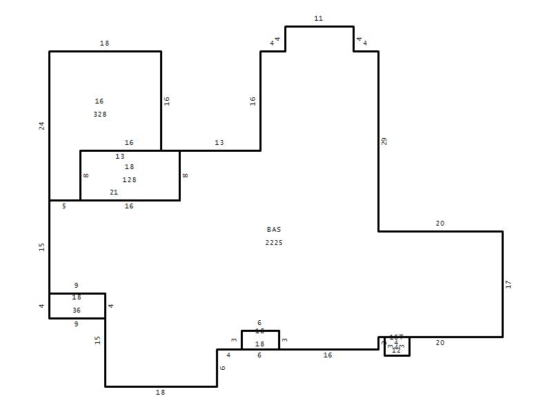
Main Body (SQFT) 2225
Year Built 1937
Additions 6
Effective Year 1937
Remodeled 0
Interior Adj.
Other Features
Building Total & Improvement Details

Grade A 165%
Percentage Complete 100
Total Adjusted Replacement Cost New $906,083
Physical Depreciation (% Bad) 0%
Depreciated Value $588,954
Economic Depreciation (% Bad) 0%
Functional Depreciation (% Bad) 0%
Total Depreciated Value $588,954
Market Area Factor 1.00
Building Value $588,954
Misc Improvements Value $3,812
Total Improvement Value $592,766

Assessed Land Value $507,300
   
Assessed Total Value $1,100,066



Addition Summary 
StoryTypeCodeArea
1.00 Terrace/Raised Patio 16T 12
1.00 Covered Porch 18 36
1.00 Frame Deck 16 328
1.00 Covered Porch 18 18
1.00 Covered Porch 18 128
1.00 Res Mas 2Nd Flr MS02 1363
 
Other Improvements 
UnitsDescriptionItemCodeYear% BadValue
253 SIZE Deck 1993 55 3257
32 SIZE Patio 1993 55 296
28 SIZE Patio 1993 55 259
 


Building Sketch
Photograph
Building Sketch Building Photo
(Click sketch for bigger image)




Copyright © 2022 Durham County, North Carolina.