Building Summary

Data last updated on: 4/3/2026     Ownership current as of: 3/30/2026     Tax Year: 2026
REID 109296

PIN # 0832-13-3347

Location Address Property Description
1436 ACADIA ST PROP-DUKE B L NORTH DURHA M/BLK:42/LT#01-03 PL:00005B-000103
   
Property Owner Owner's Mailing Address
WASHINGTON, BLAIRE BENSON;WASHINGTON, MADELINE NICOLE
1602 GLENDALE AE
DURHAM NC 27701
Parcel
Buildings
Misc Improvements
Land
Deeds
Notes
Sales
Photos
Map
Building Location Address
1436 ACADIA ST
Building Description
RESMS-RES-MS-OR-EQ
Card   of  1
Bldg Type RESIDENTIAL
Units 1
Living Area (SQFT) 2336
Number of Stories 2.00
Style CAP-CAPE-COD
Foundation 04-P-FOOTING/CRWL-SP
Exterior 02-BRICK
Const Type
Heating 06-HEAT-PUMP
Air Cond
Plumbing Baths (Full):   2
Baths (Half):   0
Extra Fixtures:   0
Total Plumbing Fixtures:   6 
Bedrooms 4
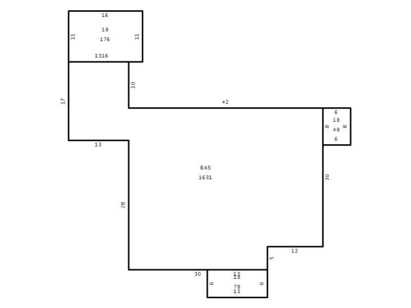
Main Body (SQFT) 1631
Year Built 1927
Additions 4
Effective Year 1927
Remodeled 0
Interior Adj.
Other Features
Building Total & Improvement Details

Grade B+20 140%
Percentage Complete 100
Total Adjusted Replacement Cost New $526,861
Physical Depreciation (% Bad) 0%
Depreciated Value $395,146
Economic Depreciation (% Bad) 0%
Functional Depreciation (% Bad) 0%
Total Depreciated Value $395,146
Market Area Factor 1.00
Building Value $395,146
Misc Improvements Value $4,801
Total Improvement Value $399,947

Assessed Land Value $380,000
   
Assessed Total Value $779,947



Addition Summary 
StoryTypeCodeArea
1.00 Covered Porch 18 48
1.00 Covered Porch 18 78
1.00 Covered Porch 18 176
1.00 Res Mas 2Nd Flr MS02 705
 
Other Improvements 
UnitsDescriptionItemCodeYear% BadValue
360 SIZE Garage Frame 1970 75 4801
 


Building Sketch
Photograph
Building Sketch Building Photo
(Click sketch for bigger image)




Copyright © 2022 Durham County, North Carolina.