Building Summary

Data last updated on: 3/13/2026     Ownership current as of: 3/9/2026     Tax Year: 2026
REID 193747

PIN # 0860-77-9765

Location Address Property Description
4822 KEMP RD PROP-PAGE IRA H/LT#01 PL:000090-000064
   
Property Owner Owner's Mailing Address
WINDLEY, LUCAS;WRIGHT, ABBY
4822 KEMP RD
DURHAM NC 27703
Parcel
Buildings
Misc Improvements
Land
Deeds
Notes
Sales
Photos
Map
Building Location Address
4822 KEMP RD
Building Description
RESMS-RES-MS-OR-EQ
Card   of  1
Bldg Type RESIDENTIAL
Units 1
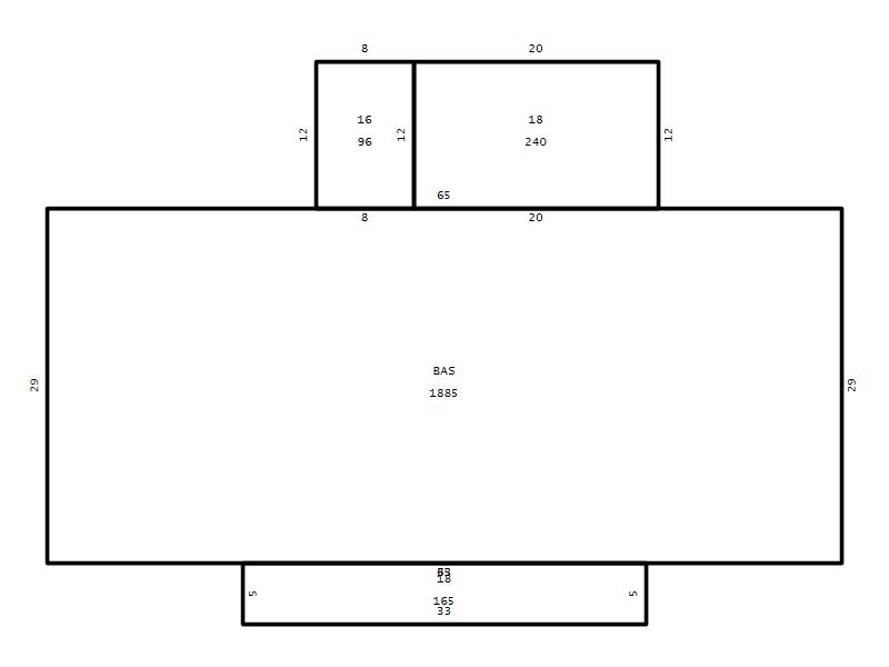
Living Area (SQFT) 1885
Number of Stories 1.00
Style RAN-RANCH
Foundation 04-P-FOOTING/CRWL-SP
Exterior 02-BRICK
Const Type
Heating 05-PACKAGE-HEAT/COOL
Air Cond
Plumbing Baths (Full):   2
Baths (Half):   0
Extra Fixtures:   0
Total Plumbing Fixtures:   6 
Bedrooms 3
Main Body (SQFT) 1885
Year Built 1977
Additions 4
Effective Year 1977
Remodeled 0
Interior Adj.
Other Features
Building Total & Improvement Details

Grade C+ 110%
Percentage Complete 100
Total Adjusted Replacement Cost New $409,083
Physical Depreciation (% Bad) 0%
Depreciated Value $269,995
Economic Depreciation (% Bad) 0%
Functional Depreciation (% Bad) 0%
Total Depreciated Value $269,995
Market Area Factor 1.00
Building Value $269,995
Misc Improvements Value $11,230
Total Improvement Value $281,225

Assessed Land Value $150,204
   
Assessed Total Value $431,429



Addition Summary 
StoryTypeCodeArea
1.00 Frame Deck 16 96
1.00 Covered Porch 18 165
1.00 Covered Porch 18 240
1.00 Unfinished Basement 10 940
 
Other Improvements 
UnitsDescriptionItemCodeYear% BadValue
912 SIZE Prefab Metal Car Shed w/Floor 1977 50 3488
10x16 DIMENSIONS Concrete Slab 2002 40 716
8x10 DIMENSIONS Shed Personal Property 2002 75
1476 UNITS Barn 1977 75 7026
 


Building Sketch
Photograph
Building Sketch Building Photo
(Click sketch for bigger image)




Copyright © 2022 Durham County, North Carolina.