Building Summary

Data last updated on: 3/13/2026     Ownership current as of: 3/9/2026     Tax Year: 2026
REID 193821

PIN # 0861-87-2253

Location Address Property Description
308 SANTEE RD PROP-LEA JAMES E-SADIE B PL:000001-000139
   
Property Owner Owner's Mailing Address
TOLEDO, HENRRY CRISTOBAL VENTURA;MARTINEZ, CAMILA SANDY RAMALES;PENADO, ANALUZ DEL CARMEN CANDIDO
308 SANTEE RD
DURHAM NC 27704
Parcel
Buildings
Misc Improvements
Land
Deeds
Notes
Sales
Photos
Map
Building Location Address
308 SANTEE RD
Building Description
RESMS-RES-MS-OR-EQ
Card   of  1
Bldg Type RESIDENTIAL
Units 1
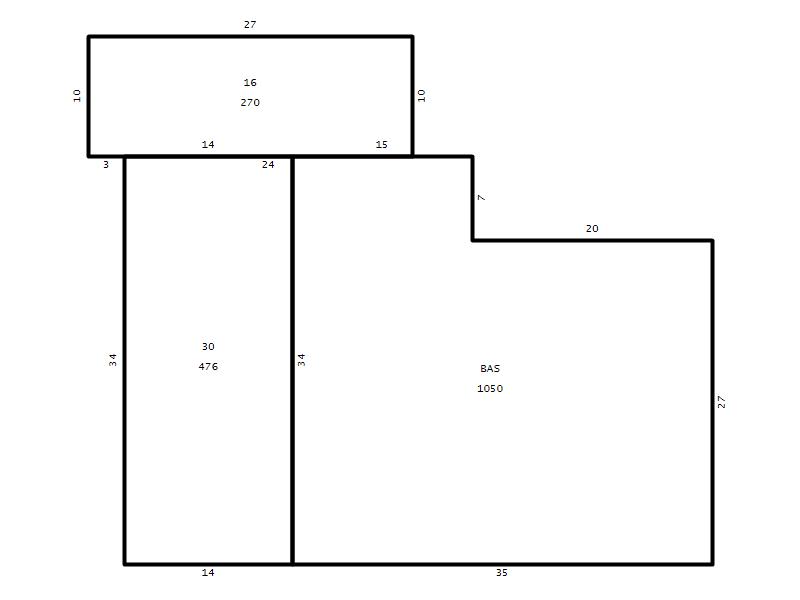
Living Area (SQFT) 1050
Number of Stories 1.00
Style RAN-RANCH
Foundation 04-P-FOOTING/CRWL-SP
Exterior 02-BRICK
Const Type
Heating 05-PACKAGE-HEAT/COOL
Air Cond
Plumbing Baths (Full):   1
Baths (Half):   0
Extra Fixtures:   0
Total Plumbing Fixtures:   3 
Bedrooms 2
Main Body (SQFT) 1050
Year Built 1965
Additions 2
Effective Year 1965
Remodeled 0
Interior Adj.
Other Features
Building Total & Improvement Details

Grade C 100%
Percentage Complete 100
Total Adjusted Replacement Cost New $229,215
Physical Depreciation (% Bad) 0%
Depreciated Value $135,237
Economic Depreciation (% Bad) 0%
Functional Depreciation (% Bad) 0%
Total Depreciated Value $135,237
Market Area Factor 1.00
Building Value $135,237
Misc Improvements Value
Total Improvement Value $135,237

Assessed Land Value $170,800
   
Assessed Total Value $306,037



Addition Summary 
StoryTypeCodeArea
1.00 Frame Deck 16 270
1.00 Carport 30 476
 
Other Improvements 
 


Building Sketch
Photograph
Building Sketch Building Photo
(Click sketch for bigger image)




Copyright © 2022 Durham County, North Carolina.