Building Summary

Data last updated on: 3/31/2026     Ownership current as of: 3/26/2026     Tax Year: 2026
REID 195541

PIN # 0851-92-7621

Location Address Property Description
219 MORNING VIEW CT GROVE PRK-LNKSDE/IDLEWOOD /LT#20 PL:000157-000365
   
Property Owner Owner's Mailing Address
SFR, XII NM RALEIGH OWNER 1 L P
PO BOX 4900`
SCOTTSDALE AZ 85261
Parcel
Buildings
Misc Improvements
Land
Deeds
Notes
Sales
Photos
Map
Building Location Address
219 MORNING VIEW CT
Building Description
RESFR-RES-FRM-OR-EQ
Card   of  1
Bldg Type RESIDENTIAL
Units 1
Living Area (SQFT) 1500
Number of Stories 2.00
Style CON-CONVENTIONAL
Foundation 03-CONTINOUS-SLAB
Exterior 08-VINYL/ALUMINUM
Const Type
Heating 05-PACKAGE-HEAT/COOL
Air Cond
Plumbing Baths (Full):   2
Baths (Half):   1
Extra Fixtures:   0
Total Plumbing Fixtures:   8 
Bedrooms 3
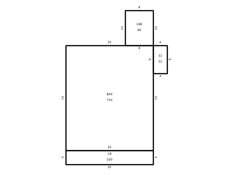
Main Body (SQFT) 750
Year Built 2003
Additions 4
Effective Year 2003
Remodeled 0
Interior Adj.
Other Features
Building Total & Improvement Details

Grade B- 115%
Percentage Complete 100
Total Adjusted Replacement Cost New $300,125
Physical Depreciation (% Bad) 0%
Depreciated Value $240,100
Economic Depreciation (% Bad) 0%
Functional Depreciation (% Bad) 0%
Total Depreciated Value $240,100
Market Area Factor 1.00
Building Value $240,100
Misc Improvements Value
Total Improvement Value $240,100

Assessed Land Value $85,500
   
Assessed Total Value $325,600



Addition Summary 
StoryTypeCodeArea
1.00 Concrete Slab 16B 80
1.00 Covered Porch 18 100
1.00 Storage Utility 32 32
1.00 Res Frame 2Nd Flr FR02 750
 
Other Improvements 
 


Building Sketch
Photograph
Building Sketch Building Photo
(Click sketch for bigger image)




Copyright © 2022 Durham County, North Carolina.