Building Summary

Data last updated on: 4/2/2026     Ownership current as of: 3/30/2026     Tax Year: 2026
REID 195764

PIN # 0840-68-3319

Location Address Property Description
2907 FORRESTAL DR LYNN HOLLOW/PH:02/LT#90 PL:000157-000351
   
Property Owner Owner's Mailing Address
AMNL ASSET COMPANY 1 LLC
3903 S CONGRESS AVE STE 40298
AUSTIN TX 78704
Parcel
Buildings
Misc Improvements
Land
Deeds
Notes
Sales
Photos
Map
Building Location Address
2907 FORRESTAL DR
Building Description
RESFR-RES-FRM-OR-EQ
Card   of  1
Bldg Type RESIDENTIAL
Units 1
Living Area (SQFT) 2240
Number of Stories 1.00
Style RAN-RANCH
Foundation 06-BASEMENT
Exterior 08-VINYL/ALUMINUM
Const Type
Heating 05-PACKAGE-HEAT/COOL
Air Cond
Plumbing Baths (Full):   3
Baths (Half):   0
Extra Fixtures:   0
Total Plumbing Fixtures:   9 
Bedrooms 4
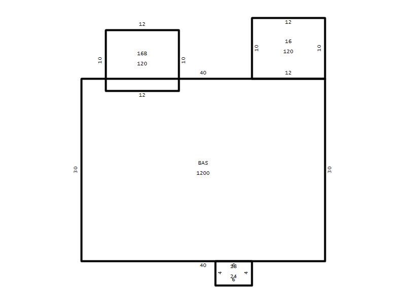
Main Body (SQFT) 1200
Year Built 2004
Additions 4
Effective Year 2004
Remodeled 0
Interior Adj.
Other Features
Building Total & Improvement Details

Grade C+5 105%
Percentage Complete 100
Total Adjusted Replacement Cost New $330,512
Physical Depreciation (% Bad) 0%
Depreciated Value $264,410
Economic Depreciation (% Bad) 0%
Functional Depreciation (% Bad) 0%
Total Depreciated Value $264,410
Market Area Factor 1.00
Building Value $264,410
Misc Improvements Value
Total Improvement Value $264,410

Assessed Land Value $84,000
   
Assessed Total Value $348,410



Addition Summary 
StoryTypeCodeArea
1.00 Frame Deck 16 120
1.00 Concrete Slab 16B 120
1.00 Covered Porch 18 24
1.00 Finished Basement 14 1040
 
Other Improvements 
 


Building Sketch
Photograph
Building Sketch Building Photo
(Click sketch for bigger image)




Copyright © 2022 Durham County, North Carolina.