Building Summary

Data last updated on: 4/2/2026     Ownership current as of: 3/30/2026     Tax Year: 2026
REID 196057

PIN # 0779-34-0206

Location Address Property Description
12419 ASHE RIDGE LN BENNINGTON/PH:01/LT#016 CNTY DRHM-----/CITY RAL PL:000158-000257
   
Property Owner Owner's Mailing Address
SMITH, AUBREY;SMITH, JARED
12419 ASHE RIDGE LN
DURHAM NC 27703
Parcel
Buildings
Misc Improvements
Land
Deeds
Notes
Sales
Photos
Map
Building Location Address
12419 ASHE RIDGE LN
Building Description
RESFR-RES-FRM-OR-EQ
Card   of  1
Bldg Type RESIDENTIAL
Units 1
Living Area (SQFT) 2039
Number of Stories 2.00
Style CAP-CAPE-COD
Foundation 03-CONTINOUS-SLAB
Exterior 08-VINYL/ALUMINUM
Const Type
Heating 05-PACKAGE-HEAT/COOL
Air Cond
Plumbing Baths (Full):   2
Baths (Half):   1
Extra Fixtures:   0
Total Plumbing Fixtures:   8 
Bedrooms 3
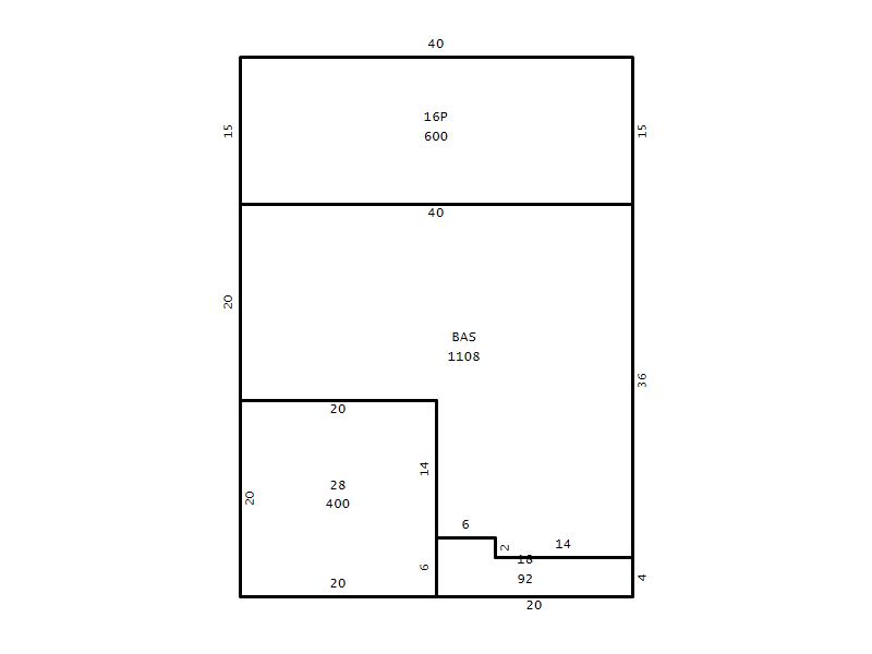
Main Body (SQFT) 1108
Year Built 2004
Additions 5
Effective Year 2004
Remodeled 0
Interior Adj.
Other Features
Building Total & Improvement Details

Grade B-5 115%
Percentage Complete 100
Total Adjusted Replacement Cost New $406,327
Physical Depreciation (% Bad) 0%
Depreciated Value $325,062
Economic Depreciation (% Bad) 0%
Functional Depreciation (% Bad) 0%
Total Depreciated Value $325,062
Market Area Factor 1.00
Building Value $325,062
Misc Improvements Value
Total Improvement Value $325,062

Assessed Land Value $121,000
   
Assessed Total Value $446,062



Addition Summary 
StoryTypeCodeArea
1.00 Patio 16P 600
1.00 Covered Porch 18 92
1.00 Garage 28 400
1.00 Res Frame 2Nd Flr FR02 831
1.00 Res Frm 2Nd Flr Over Garg FR02 100
 
Other Improvements 
 


Building Sketch
Photograph
Building Sketch Building Photo
(Click sketch for bigger image)




Copyright © 2022 Durham County, North Carolina.