Building Summary

Data last updated on: 4/2/2026     Ownership current as of: 3/30/2026     Tax Year: 2026
REID 196071

PIN # 0779-33-0582

Location Address Property Description
5609 SEVERN GROVE DR BENNINGTON/PH:01/LT#028 CNTY DRHM-----/CITY RAL PL:000158-000259
   
Property Owner Owner's Mailing Address
SCHMITT, MATTHEW T;SCHMITT, CARA C
5609 SEVERN GROVE DR
DURHAM NC 27703
Parcel
Buildings
Misc Improvements
Land
Deeds
Notes
Sales
Photos
Map
Building Location Address
5609 SEVERN GROVE DR
Building Description
RESFR-RES-FRM-OR-EQ
Card   of  1
Bldg Type RESIDENTIAL
Units 1
Living Area (SQFT) 2400
Number of Stories 2.00
Style CON-CONVENTIONAL
Foundation 03-CONTINOUS-SLAB
Exterior 08-VINYL/ALUMINUM
Const Type
Heating 05-PACKAGE-HEAT/COOL
Air Cond
Plumbing Baths (Full):   2
Baths (Half):   1
Extra Fixtures:   0
Total Plumbing Fixtures:   8 
Bedrooms 4
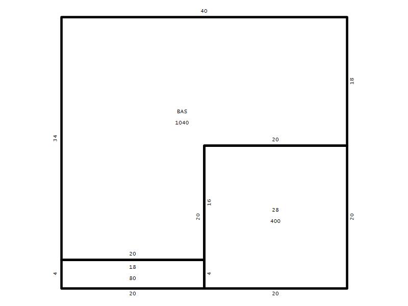
Main Body (SQFT) 1040
Year Built 2004
Additions 5
Effective Year 2004
Remodeled 0
Interior Adj.
Other Features
Building Total & Improvement Details

Grade B-5 115%
Percentage Complete 100
Total Adjusted Replacement Cost New $437,544
Physical Depreciation (% Bad) 0%
Depreciated Value $350,035
Economic Depreciation (% Bad) 0%
Functional Depreciation (% Bad) 0%
Total Depreciated Value $350,035
Market Area Factor 1.00
Building Value $350,035
Misc Improvements Value
Total Improvement Value $350,035

Assessed Land Value $119,000
   
Assessed Total Value $469,035



Addition Summary 
StoryTypeCodeArea
1.00 Covered Porch 18 80
1.00 Garage 28 400
1.00 Res Frame 2Nd Flr FR02 1040
1.00 Res Frm 2Nd Flr Over Garg FR02 320
1.00 Concrete Slab 16B 300
 
Other Improvements 
 


Building Sketch
Photograph
Building Sketch Building Photo
(Click sketch for bigger image)




Copyright © 2022 Durham County, North Carolina.