Building Summary

Data last updated on: 4/2/2026     Ownership current as of: 3/30/2026     Tax Year: 2026
REID 196077

PIN # 0779-23-7470

Location Address Property Description
12413 KENDALL RIDGE CT BENNINGTON/PH:01/LT#049 PL:000158-000259
   
Property Owner Owner's Mailing Address
SAUER, EVAN ROBERT
12413 KENDALL RIDGE CT
DURHAM NC 27703
Parcel
Buildings
Misc Improvements
Land
Deeds
Notes
Sales
Photos
Map
Building Location Address
12413 KENDALL RIDGE CT
Building Description
RESFR-RES-FRM-OR-EQ
Card   of  1
Bldg Type RESIDENTIAL
Units 1
Living Area (SQFT) 2400
Number of Stories 2.00
Style CON-CONVENTIONAL
Foundation 03-CONTINOUS-SLAB
Exterior 08-VINYL/ALUMINUM
Const Type
Heating 05-PACKAGE-HEAT/COOL
Air Cond
Plumbing Baths (Full):   2
Baths (Half):   1
Extra Fixtures:   0
Total Plumbing Fixtures:   8 
Bedrooms 4
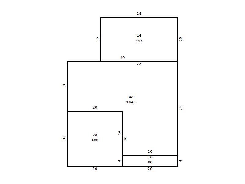
Main Body (SQFT) 1040
Year Built 2003
Additions 5
Effective Year 2003
Remodeled 0
Interior Adj.
Other Features
Building Total & Improvement Details

Grade B-5 115%
Percentage Complete 100
Total Adjusted Replacement Cost New $448,838
Physical Depreciation (% Bad) 0%
Depreciated Value $381,512
Economic Depreciation (% Bad) 0%
Functional Depreciation (% Bad) 0%
Total Depreciated Value $381,512
Market Area Factor 1.00
Building Value $381,512
Misc Improvements Value
Total Improvement Value $381,512

Assessed Land Value $119,000
   
Assessed Total Value $500,512



Addition Summary 
StoryTypeCodeArea
1.00 Frame Deck 16 448
1.00 Covered Porch 18 80
1.00 Garage 28 400
1.00 Res Frame 2Nd Flr FR02 1040
1.00 Res Frm 2Nd Flr Over Garg FR02 320
 
Other Improvements 
 


Building Sketch
Photograph
Building Sketch Building Photo
(Click sketch for bigger image)




Copyright © 2022 Durham County, North Carolina.