Building Summary

Data last updated on: 4/2/2026     Ownership current as of: 3/30/2026     Tax Year: 2026
REID 196100

PIN # 0779-23-7700

Location Address Property Description
12428 KENDALL RIDGE CT BENNINGTON/PH:01/LT#036 CNTY DRHM-----/CITY RAL PL:000158-000261
   
Property Owner Owner's Mailing Address
STAR BORROWER SFR6 LP
16220 N SCOTTSDALE RD STE 450
SCOTTSDALE AZ 85254
Parcel
Buildings
Misc Improvements
Land
Deeds
Notes
Sales
Photos
Map
Building Location Address
12428 KENDALL RIDGE CT
Building Description
RESFR-RES-FRM-OR-EQ
Card   of  1
Bldg Type RESIDENTIAL
Units 1
Living Area (SQFT) 2400
Number of Stories 2.00
Style CON-CONVENTIONAL
Foundation 03-CONTINOUS-SLAB
Exterior 08-VINYL/ALUMINUM
Const Type
Heating 05-PACKAGE-HEAT/COOL
Air Cond
Plumbing Baths (Full):   2
Baths (Half):   1
Extra Fixtures:   0
Total Plumbing Fixtures:   8 
Bedrooms 4
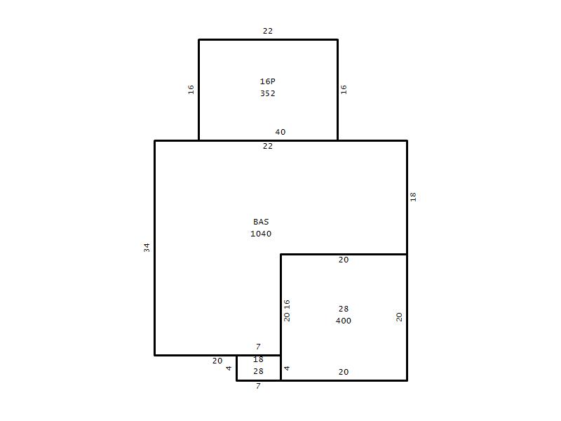
Main Body (SQFT) 1040
Year Built 2003
Additions 5
Effective Year 2003
Remodeled 0
Interior Adj.
Other Features
Building Total & Improvement Details

Grade B-5 115%
Percentage Complete 100
Total Adjusted Replacement Cost New $438,895
Physical Depreciation (% Bad) 0%
Depreciated Value $351,116
Economic Depreciation (% Bad) 0%
Functional Depreciation (% Bad) 0%
Total Depreciated Value $351,116
Market Area Factor 1.00
Building Value $351,116
Misc Improvements Value
Total Improvement Value $351,116

Assessed Land Value $120,000
   
Assessed Total Value $471,116



Addition Summary 
StoryTypeCodeArea
1.00 Patio 16P 352
1.00 Covered Porch 18 28
1.00 Garage 28 400
1.00 Res Frame 2Nd Flr FR02 1040
1.00 Res Frm 2Nd Flr Over Garg FR02 320
 
Other Improvements 
 


Building Sketch
Photograph
Building Sketch Building Photo
(Click sketch for bigger image)




Copyright © 2022 Durham County, North Carolina.