Building Summary

Data last updated on: 3/31/2026     Ownership current as of: 3/26/2026     Tax Year: 2026
REID 196438

PIN # 0759-41-4092

Location Address Property Description
5209 SUDA DR PAGEHURST/PH:3B1/LT#070 PL:000159-000081
   
Property Owner Owner's Mailing Address
CAUDLE, CLINTON
5209 SUDA DR
DURHAM NC 27703
Parcel
Buildings
Misc Improvements
Land
Deeds
Notes
Sales
Photos
Map
Building Location Address
5209 SUDA DR
Building Description
RESFR-RES-FRM-OR-EQ
Card   of  1
Bldg Type RESIDENTIAL
Units 1
Living Area (SQFT) 1528
Number of Stories 2.00
Style CON-CONVENTIONAL
Foundation 03-CONTINOUS-SLAB
Exterior 08-VINYL/ALUMINUM
Const Type
Heating 05-PACKAGE-HEAT/COOL
Air Cond
Plumbing Baths (Full):   2
Baths (Half):   1
Extra Fixtures:   0
Total Plumbing Fixtures:   8 
Bedrooms 3
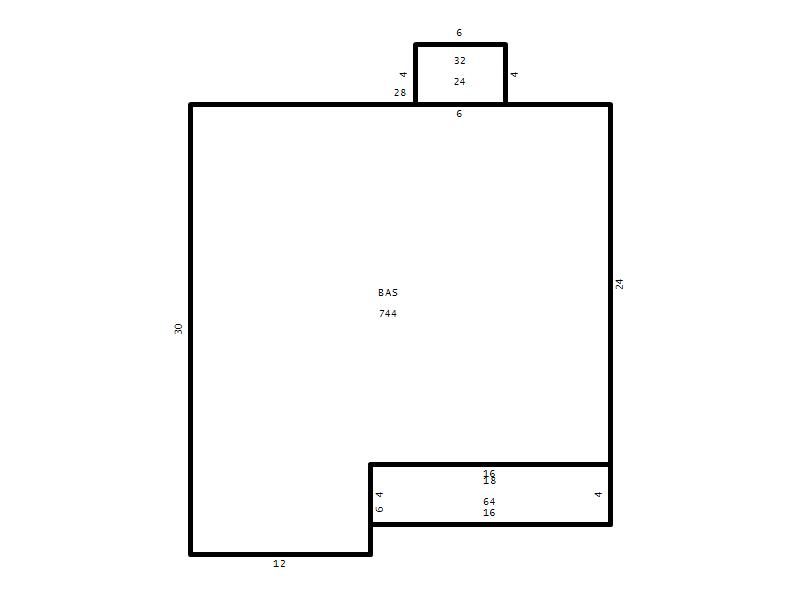
Main Body (SQFT) 744
Year Built 2003
Additions 5
Effective Year 2003
Remodeled 0
Interior Adj.
Other Features
Building Total & Improvement Details

Grade C 100%
Percentage Complete 100
Total Adjusted Replacement Cost New $256,963
Physical Depreciation (% Bad) 0%
Depreciated Value $205,570
Economic Depreciation (% Bad) 0%
Functional Depreciation (% Bad) 0%
Total Depreciated Value $205,570
Market Area Factor 1.00
Building Value $205,570
Misc Improvements Value $899
Total Improvement Value $206,469

Assessed Land Value $114,450
   
Assessed Total Value $320,919



Addition Summary 
StoryTypeCodeArea
1.00 Covered Porch 18 64
1.00 Storage Utility 32 24
1.00 Res Frame 2Nd Flr FR02 784
1.00 Concrete Slab 16B 96
1.00 Concrete Slab 16B 16
 
Other Improvements 
UnitsDescriptionItemCodeYear% BadValue
12x12 DIMENSIONS Storage Building 2003 75 899
 


Building Sketch
Photograph
Building Sketch Building Photo
(Click sketch for bigger image)




Copyright © 2022 Durham County, North Carolina.