Building Summary

Data last updated on: 3/31/2026     Ownership current as of: 3/26/2026     Tax Year: 2026
REID 196461

PIN # 0759-40-5829

Location Address Property Description
5206 SUDA DR PAGEHURST/PH:3B1/LT#139 PL:000159-000081
   
Property Owner Owner's Mailing Address
GARCIA, ESTEBAN;GARCIA, JUANITA
5206 SUDA DR
DURHAM NC 27703
Parcel
Buildings
Misc Improvements
Land
Deeds
Notes
Sales
Photos
Map
Building Location Address
5206 SUDA DR
Building Description
RESFR-RES-FRM-OR-EQ
Card   of  1
Bldg Type RESIDENTIAL
Units 1
Living Area (SQFT) 1632
Number of Stories 2.00
Style COL-COLONIAL
Foundation 03-CONTINOUS-SLAB
Exterior 08-VINYL/ALUMINUM
Const Type
Heating 05-PACKAGE-HEAT/COOL
Air Cond
Plumbing Baths (Full):   2
Baths (Half):   1
Extra Fixtures:   0
Total Plumbing Fixtures:   8 
Bedrooms 3
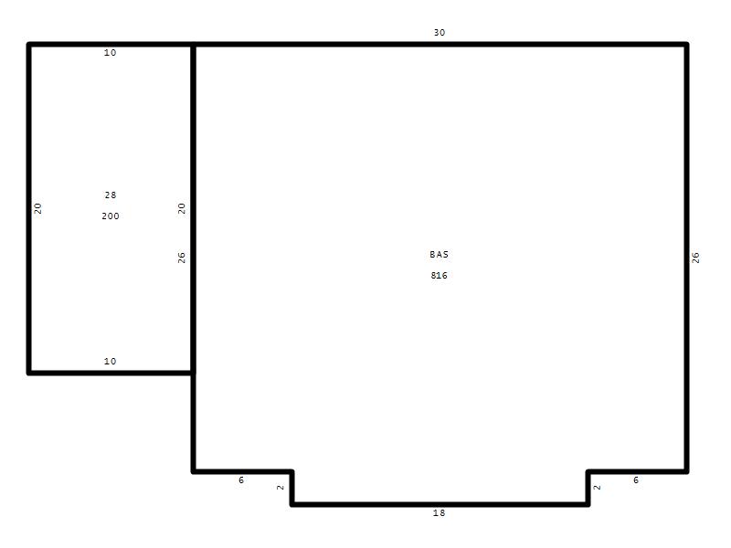
Main Body (SQFT) 816
Year Built 2004
Additions 3
Effective Year 2004
Remodeled 0
Interior Adj.
Other Features
Building Total & Improvement Details

Grade C 100%
Percentage Complete 100
Total Adjusted Replacement Cost New $282,974
Physical Depreciation (% Bad) 0%
Depreciated Value $254,677
Economic Depreciation (% Bad) 0%
Functional Depreciation (% Bad) 0%
Total Depreciated Value $254,677
Market Area Factor 1.00
Building Value $254,677
Misc Improvements Value
Total Improvement Value $254,677

Assessed Land Value $115,500
   
Assessed Total Value $370,177



Addition Summary 
StoryTypeCodeArea
1.00 Garage 28 200
1.00 Res Frame 2Nd Flr FR02 816
1.00 Concrete Slab 16B 120
 
Other Improvements 
 


Building Sketch
Photograph
Building Sketch Building Photo
(Click sketch for bigger image)




Copyright © 2022 Durham County, North Carolina.