Building Summary

Data last updated on: 3/31/2026     Ownership current as of: 3/26/2026     Tax Year: 2026
REID 196469

PIN # 0759-40-2813

Location Address Property Description
5113 SUDA DR PAGEHURST/PH:3B1/LT#077 PL:000159-000083
   
Property Owner Owner's Mailing Address
ALVARENGA-RIVAS, ANABELLA;RIVAS-ALVARENGA, MICHAEL
5113 SUDA DR
DURHAM NC 27703
Parcel
Buildings
Misc Improvements
Land
Deeds
Notes
Sales
Photos
Map
Building Location Address
5113 SUDA DR
Building Description
RESFR-RES-FRM-OR-EQ
Card   of  1
Bldg Type RESIDENTIAL
Units 1
Living Area (SQFT) 1380
Number of Stories 2.00
Style CON-CONVENTIONAL
Foundation 03-CONTINOUS-SLAB
Exterior 08-VINYL/ALUMINUM
Const Type
Heating 05-PACKAGE-HEAT/COOL
Air Cond
Plumbing Baths (Full):   2
Baths (Half):   1
Extra Fixtures:   0
Total Plumbing Fixtures:   8 
Bedrooms 3
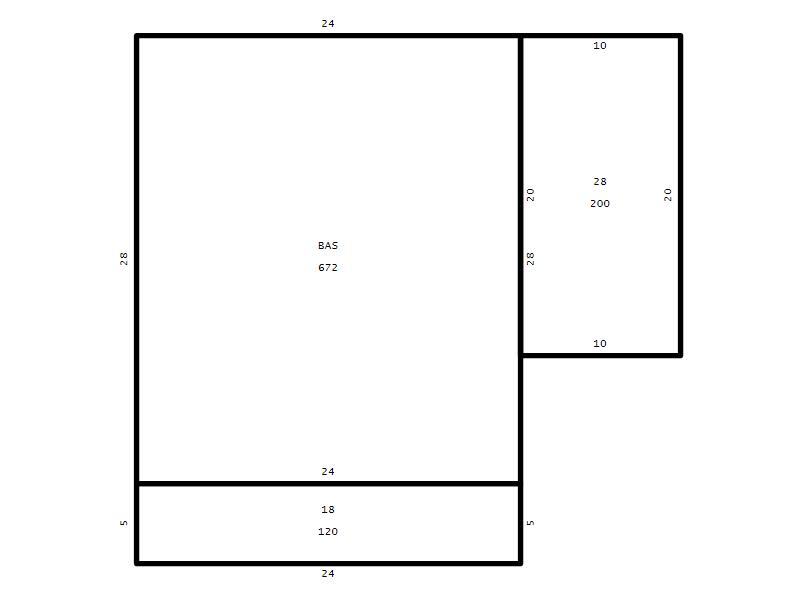
Main Body (SQFT) 672
Year Built 2007
Additions 4
Effective Year 2007
Remodeled 0
Interior Adj.
Other Features
Building Total & Improvement Details

Grade C 100%
Percentage Complete 100
Total Adjusted Replacement Cost New $261,763
Physical Depreciation (% Bad) 0%
Depreciated Value $214,646
Economic Depreciation (% Bad) 0%
Functional Depreciation (% Bad) 0%
Total Depreciated Value $214,646
Market Area Factor 1.00
Building Value $214,646
Misc Improvements Value
Total Improvement Value $214,646

Assessed Land Value $114,450
   
Assessed Total Value $329,096



Addition Summary 
StoryTypeCodeArea
1.00 Covered Porch 18 120
1.00 Garage 28 200
1.00 Concrete Slab 16B 120
1.00 Res Frame 2Nd Flr FR02 708
 
Other Improvements 
 


Building Sketch
Photograph
Building Sketch Building Photo
(Click sketch for bigger image)




Copyright © 2022 Durham County, North Carolina.