Building Summary

Data last updated on: 4/2/2026     Ownership current as of: 3/30/2026     Tax Year: 2026
REID 196559

PIN # 0842-36-9483

Location Address Property Description
2029 LIME ST LANDON FARMS/PH:2A-4A/LT# 177 PL:000159-000095
   
Property Owner Owner's Mailing Address
AMNL ASSET COMPANY 3 LLC
3903 S CONGRESS AVE STE 40298
AUSTIN TX 78704
Parcel
Buildings
Misc Improvements
Land
Deeds
Notes
Sales
Photos
Map
Building Location Address
2029 LIME ST
Building Description
RESFR-RES-FRM-OR-EQ
Card   of  1
Bldg Type RESIDENTIAL
Units 1
Living Area (SQFT) 1120
Number of Stories 2.00
Style CON-CONVENTIONAL
Foundation 03-CONTINOUS-SLAB
Exterior 08-VINYL/ALUMINUM
Const Type
Heating 05-PACKAGE-HEAT/COOL
Air Cond
Plumbing Baths (Full):   1
Baths (Half):   1
Extra Fixtures:   0
Total Plumbing Fixtures:   5 
Bedrooms 3
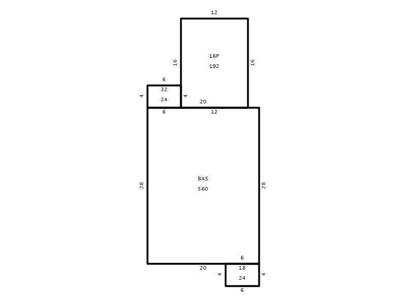
Main Body (SQFT) 560
Year Built 2004
Additions 4
Effective Year 2004
Remodeled 0
Interior Adj.
Other Features
Building Total & Improvement Details

Grade C+ 110%
Percentage Complete 100
Total Adjusted Replacement Cost New $235,851
Physical Depreciation (% Bad) 0%
Depreciated Value $212,266
Economic Depreciation (% Bad) 0%
Functional Depreciation (% Bad) 0%
Total Depreciated Value $212,266
Market Area Factor 1.00
Building Value $212,266
Misc Improvements Value
Total Improvement Value $212,266

Assessed Land Value $70,625
   
Assessed Total Value $282,891



Addition Summary 
StoryTypeCodeArea
1.00 Patio 16P 192
1.00 Covered Porch 18 24
1.00 Storage Utility 32 24
1.00 Res Frame 2Nd Flr FR02 560
 
Other Improvements 
 


Building Sketch
Photograph
Building Sketch Building Photo
(Click sketch for bigger image)




Copyright © 2022 Durham County, North Carolina.