Building Summary

Data last updated on: 3/12/2026     Ownership current as of: 3/6/2026     Tax Year: 2026
REID 196572

PIN # 0842-46-5722

Location Address Property Description
2121 LIME ST LANDON FARMS/PH:2A-4A/LT# 211 PL:000159-000095
   
Property Owner Owner's Mailing Address
IIUNGA, KAYUKA;IIUNGA, MBUYI N
3084 B COLONY RD
DURHAM NC 27705
Parcel
Buildings
Misc Improvements
Land
Deeds
Notes
Sales
Photos
Map
Building Location Address
2121 LIME ST
Building Description
RESFR-RES-FRM-OR-EQ
Card   of  1
Bldg Type RESIDENTIAL
Units 1
Living Area (SQFT) 1868
Number of Stories 2.00
Style CON-CONVENTIONAL
Foundation 03-CONTINOUS-SLAB
Exterior 08-VINYL/ALUMINUM
Const Type
Heating 05-PACKAGE-HEAT/COOL
Air Cond
Plumbing Baths (Full):   2
Baths (Half):   1
Extra Fixtures:   0
Total Plumbing Fixtures:   8 
Bedrooms 3
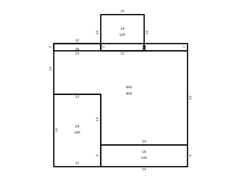
Main Body (SQFT) 806
Year Built 2003
Additions 7
Effective Year 2003
Remodeled 0
Interior Adj.
Other Features
Building Total & Improvement Details

Grade C+ 110%
Percentage Complete 100
Total Adjusted Replacement Cost New $358,646
Physical Depreciation (% Bad) 0%
Depreciated Value $286,917
Economic Depreciation (% Bad) 0%
Functional Depreciation (% Bad) 0%
Total Depreciated Value $286,917
Market Area Factor 1.00
Building Value $286,917
Misc Improvements Value
Total Improvement Value $286,917

Assessed Land Value $71,875
   
Assessed Total Value $358,792



Addition Summary 
StoryTypeCodeArea
1.00 Overhang 01 48
1.00 Covered Porch 18 144
1.00 Screen Porch 19 120
1.00 Garage 28 260
1.00 Overhang 01 26
1.00 Res Frame 2Nd Flr FR02 806
1.00 Res Frm 2Nd Flr Over Garg FR02 182
 
Other Improvements 
 


Building Sketch
Photograph
Building Sketch Building Photo
(Click sketch for bigger image)




Copyright © 2022 Durham County, North Carolina.