Building Summary

Data last updated on: 4/1/2026     Ownership current as of: 3/27/2026     Tax Year: 2026
REID 196881

PIN # 0843-88-1655

Location Address Property Description
4314 CHIMNEY STONE RD GLENNSTONE/PH:02/LT#21 PL:000159-000227
   
Property Owner Owner's Mailing Address
MANARY, RYAN;MANARY, LAURA
4314 CHIMNEY STONE RD
DURHAM NC 27704
Parcel
Buildings
Misc Improvements
Land
Deeds
Notes
Sales
Photos
Map
Building Location Address
4314 CHIMNEY STONE RD
Building Description
RESFR-RES-FRM-OR-EQ
Card   of  1
Bldg Type RESIDENTIAL
Units 1
Living Area (SQFT) 1402
Number of Stories 1.00
Style RAN-RANCH
Foundation 03-CONTINOUS-SLAB
Exterior 08-VINYL/ALUMINUM
Const Type
Heating 05-PACKAGE-HEAT/COOL
Air Cond
Plumbing Baths (Full):   2
Baths (Half):   0
Extra Fixtures:   0
Total Plumbing Fixtures:   6 
Bedrooms 3
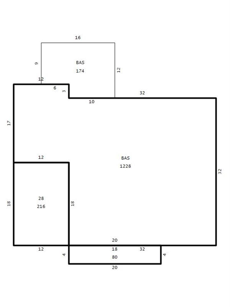
Main Body (SQFT) 1402
Year Built 2004
Additions 2
Effective Year 2004
Remodeled 0
Interior Adj.
Other Features
Building Total & Improvement Details

Grade C+ 110%
Percentage Complete 100
Total Adjusted Replacement Cost New $283,271
Physical Depreciation (% Bad) 0%
Depreciated Value $226,617
Economic Depreciation (% Bad) 0%
Functional Depreciation (% Bad) 0%
Total Depreciated Value $226,617
Market Area Factor 1.00
Building Value $226,617
Misc Improvements Value
Total Improvement Value $226,617

Assessed Land Value $74,375
   
Assessed Total Value $300,992



Addition Summary 
StoryTypeCodeArea
1.00 Garage 28 216
1.00 Covered Porch 18 80
 
Other Improvements 
 


Building Sketch
Photograph
Building Sketch Building Photo
(Click sketch for bigger image)




Copyright © 2022 Durham County, North Carolina.