Building Summary

Data last updated on: 4/2/2026     Ownership current as of: 3/30/2026     Tax Year: 2026
REID 196976

PIN # 0852-18-7496

Location Address Property Description
104 KNOTHOLE LN CARPENTER POINTE/PH:02/LT #49 PL:000159-000309
   
Property Owner Owner's Mailing Address
IH5 PROPERTY NORTH CAROLINA LP
PO BOX 4900
SCOTTSDALE AZ 85261
Parcel
Buildings
Misc Improvements
Land
Deeds
Notes
Sales
Photos
Map
Building Location Address
104 KNOTHOLE LN
Building Description
RESFR-RES-FRM-OR-EQ
Card   of  1
Bldg Type RESIDENTIAL
Units 1
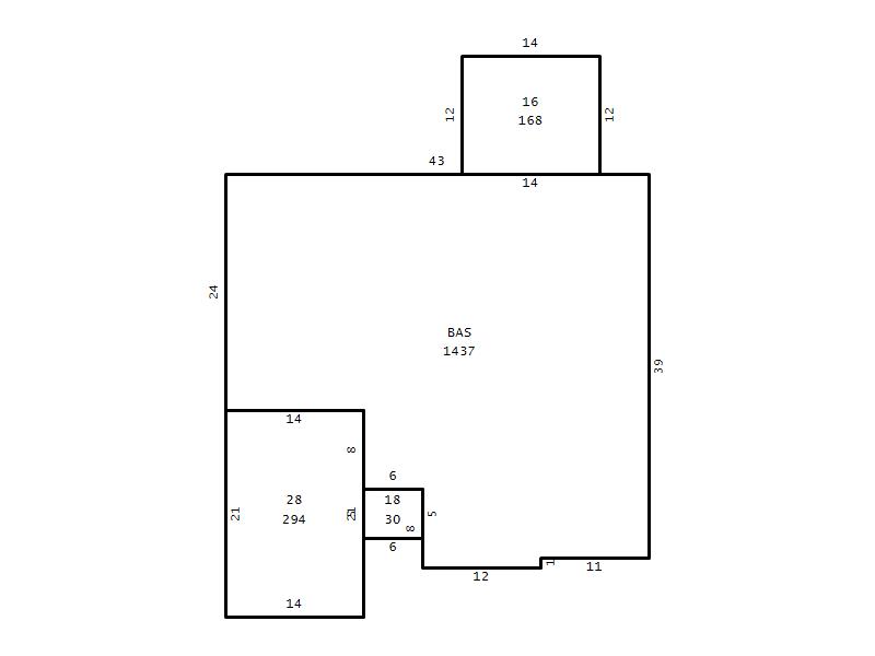
Living Area (SQFT) 1437
Number of Stories 1.00
Style RAN-RANCH
Foundation 04-P-FOOTING/CRWL-SP
Exterior 08-VINYL/ALUMINUM
Const Type
Heating 05-PACKAGE-HEAT/COOL
Air Cond
Plumbing Baths (Full):   2
Baths (Half):   0
Extra Fixtures:   0
Total Plumbing Fixtures:   6 
Bedrooms 3
Main Body (SQFT) 1437
Year Built 2004
Additions 3
Effective Year 2004
Remodeled 0
Interior Adj.
Other Features
Building Total & Improvement Details

Grade C+15 115%
Percentage Complete 100
Total Adjusted Replacement Cost New $316,510
Physical Depreciation (% Bad) 0%
Depreciated Value $253,208
Economic Depreciation (% Bad) 0%
Functional Depreciation (% Bad) 0%
Total Depreciated Value $253,208
Market Area Factor 1.00
Building Value $253,208
Misc Improvements Value
Total Improvement Value $253,208

Assessed Land Value $77,500
   
Assessed Total Value $330,708



Addition Summary 
StoryTypeCodeArea
1.00 Frame Deck 16 168
1.00 Covered Porch 18 30
1.00 Garage 28 294
 
Other Improvements 
 


Building Sketch
Photograph
Building Sketch Building Photo
(Click sketch for bigger image)




Copyright © 2022 Durham County, North Carolina.