Building Summary

Data last updated on: 4/2/2026     Ownership current as of: 3/30/2026     Tax Year: 2026
REID 196988

PIN # 0852-18-4692

Location Address Property Description
2611 MORTISE CT CARPENTER POINTE/PH:02/LT #37 PL:000159-000309
   
Property Owner Owner's Mailing Address
BUNN, ADAM;BUNN, LAURA
2611 MORTISE CT
DURHAM NC 27704
Parcel
Buildings
Misc Improvements
Land
Deeds
Notes
Sales
Photos
Map
Building Location Address
2611 MORTISE CT
Building Description
RESFR-RES-FRM-OR-EQ
Card   of  1
Bldg Type RESIDENTIAL
Units 1
Living Area (SQFT) 1983
Number of Stories 2.00
Style CON-CONVENTIONAL
Foundation 04-P-FOOTING/CRWL-SP
Exterior 08-VINYL/ALUMINUM
Const Type
Heating 05-PACKAGE-HEAT/COOL
Air Cond
Plumbing Baths (Full):   2
Baths (Half):   1
Extra Fixtures:   0
Total Plumbing Fixtures:   8 
Bedrooms 4
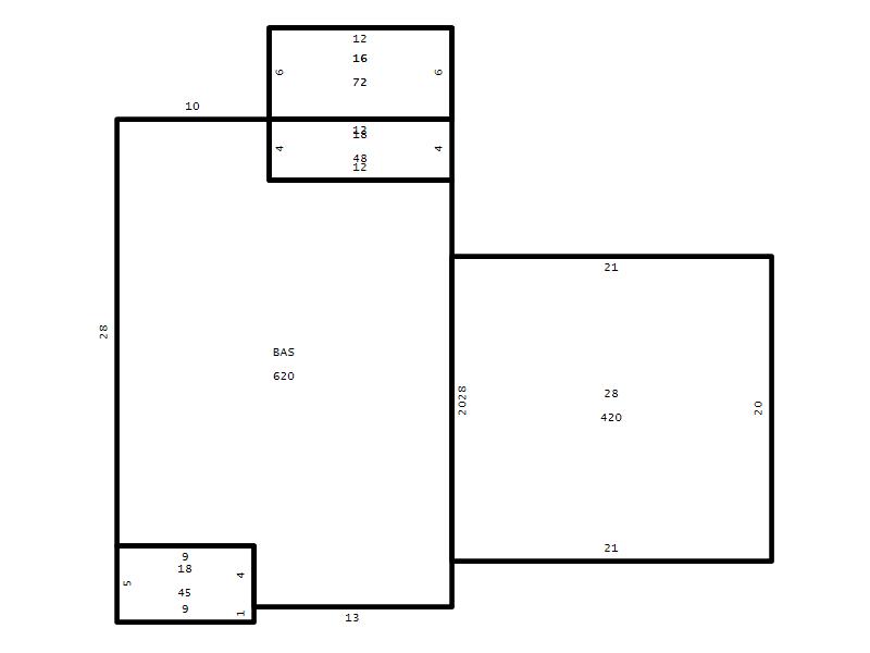
Main Body (SQFT) 620
Year Built 2004
Additions 8
Effective Year 2004
Remodeled 0
Interior Adj.
Other Features
Building Total & Improvement Details

Grade C+15 115%
Percentage Complete 100
Total Adjusted Replacement Cost New $377,260
Physical Depreciation (% Bad) 0%
Depreciated Value $301,808
Economic Depreciation (% Bad) 0%
Functional Depreciation (% Bad) 0%
Total Depreciated Value $301,808
Market Area Factor 1.00
Building Value $301,808
Misc Improvements Value
Total Improvement Value $301,808

Assessed Land Value $78,750
   
Assessed Total Value $380,558



Addition Summary 
StoryTypeCodeArea
1.00 Garage 28 420
1.00 Frame Deck 16 72
1.00 Covered Porch 18 45
1.00 Covered Porch 18 48
1.00 Frame Deck 16 72
1.00 Finished Basement 14 533
1.00 Res Frame 2Nd Flr FR02 620
1.00 Res Frm 2Nd Flr Over Garg FR02 210
 
Other Improvements 
 


Building Sketch
Photograph
Building Sketch Building Photo
(Click sketch for bigger image)




Copyright © 2022 Durham County, North Carolina.