Building Summary

Data last updated on: 3/12/2026     Ownership current as of: 3/6/2026     Tax Year: 2026
REID 197008

PIN # 0842-56-5110

Location Address Property Description
2024 SPRING CREEK DR LANDON FARMS/PH:2B/LT#021 PL:000159-000343
   
Property Owner Owner's Mailing Address
LEE, SAMANTHA H;LEE, ANTHONY
2024 SPRING CREEK DR
DURHAM NC 27704
Parcel
Buildings
Misc Improvements
Land
Deeds
Notes
Sales
Photos
Map
Building Location Address
2024 SPRING CREEK DR
Building Description
RESFR-RES-FRM-OR-EQ
Card   of  1
Bldg Type RESIDENTIAL
Units 1
Living Area (SQFT) 2002
Number of Stories 2.00
Style CON-CONVENTIONAL
Foundation 04-P-FOOTING/CRWL-SP
Exterior 08-VINYL/ALUMINUM
Const Type
Heating 05-PACKAGE-HEAT/COOL
Air Cond
Plumbing Baths (Full):   2
Baths (Half):   1
Extra Fixtures:   0
Total Plumbing Fixtures:   8 
Bedrooms 4
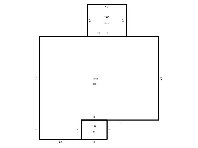
Main Body (SQFT) 1040
Year Built 2004
Additions 3
Effective Year 2004
Remodeled 0
Interior Adj.
Other Features
Building Total & Improvement Details

Grade C+ 110%
Percentage Complete 100
Total Adjusted Replacement Cost New $360,466
Physical Depreciation (% Bad) 0%
Depreciated Value $288,373
Economic Depreciation (% Bad) 0%
Functional Depreciation (% Bad) 0%
Total Depreciated Value $288,373
Market Area Factor 1.00
Building Value $288,373
Misc Improvements Value
Total Improvement Value $288,373

Assessed Land Value $73,750
   
Assessed Total Value $362,123



Addition Summary 
StoryTypeCodeArea
1.00 Patio 16P 120
1.00 Covered Porch 18 48
1.00 Res Frame 2Nd Flr FR02 962
 
Other Improvements 
UnitsDescriptionItemCodeYear% BadValue
12x10 DIMENSIONS Shed Personal Property 2010 75
 


Building Sketch
Photograph
Building Sketch Building Photo
(Click sketch for bigger image)




Copyright © 2022 Durham County, North Carolina.