Building Summary

Data last updated on: 4/2/2026     Ownership current as of: 3/30/2026     Tax Year: 2026
REID 197230

PIN # 0840-68-6688

Location Address Property Description
2 INTREPID CT LYNN HOLLOW/PH:03/LT#37 PL:000160-000073
   
Property Owner Owner's Mailing Address
ODONNELL, BRIAN;ODONNELL, KIERA
2 INTREPID CT
DURHAM NC 27703
Parcel
Buildings
Misc Improvements
Land
Deeds
Notes
Sales
Photos
Map
Building Location Address
2 INTREPID CT
Building Description
RESFR-RES-FRM-OR-EQ
Card   of  1
Bldg Type RESIDENTIAL
Units 1
Living Area (SQFT) 1673
Number of Stories 2.00
Style CAP-CAPE-COD
Foundation 03-CONTINOUS-SLAB
Exterior 08-VINYL/ALUMINUM
Const Type
Heating 05-PACKAGE-HEAT/COOL
Air Cond
Plumbing Baths (Full):   2
Baths (Half):   1
Extra Fixtures:   0
Total Plumbing Fixtures:   8 
Bedrooms 3
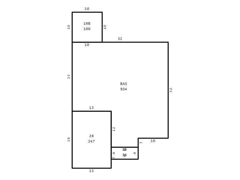
Main Body (SQFT) 934
Year Built 2004
Additions 5
Effective Year 2004
Remodeled 0
Interior Adj.
Other Features
Building Total & Improvement Details

Grade C+10 110%
Percentage Complete 100
Total Adjusted Replacement Cost New $321,322
Physical Depreciation (% Bad) 0%
Depreciated Value $273,124
Economic Depreciation (% Bad) 0%
Functional Depreciation (% Bad) 0%
Total Depreciated Value $273,124
Market Area Factor 1.00
Building Value $273,124
Misc Improvements Value
Total Improvement Value $273,124

Assessed Land Value $78,400
   
Assessed Total Value $351,524



Addition Summary 
StoryTypeCodeArea
1.00 Concrete Slab 16B 100
1.00 Covered Porch 18 36
1.00 Garage 28 247
1.00 Res Frame 2Nd Flr FR02 635
1.00 Res Frm 2Nd Flr Over Garg FR02 104
 
Other Improvements 
 


Building Sketch
Photograph
Building Sketch Building Photo
(Click sketch for bigger image)




Copyright © 2022 Durham County, North Carolina.