Building Summary

Data last updated on: 4/2/2026     Ownership current as of: 3/30/2026     Tax Year: 2026
REID 197234

PIN # 0840-68-8419

Location Address Property Description
3311 ORISKONY WAY LYNN HOLLOW/PH:03/LT#41 PL:000160-000073
   
Property Owner Owner's Mailing Address
ELDER, CHARLOTTE
3311 ORISKONY WAY
DURHAM NC 27703
Parcel
Buildings
Misc Improvements
Land
Deeds
Notes
Sales
Photos
Map
Building Location Address
3311 ORISKONY WAY
Building Description
RESFR-RES-FRM-OR-EQ
Card   of  1
Bldg Type RESIDENTIAL
Units 1
Living Area (SQFT) 1890
Number of Stories 2.00
Style CON-CONVENTIONAL
Foundation 06-BASEMENT
Exterior 08-VINYL/ALUMINUM
Const Type
Heating 05-PACKAGE-HEAT/COOL
Air Cond
Plumbing Baths (Full):   2
Baths (Half):   1
Extra Fixtures:   0
Total Plumbing Fixtures:   8 
Bedrooms 4
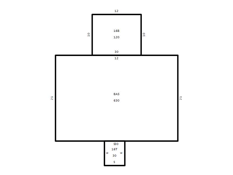
Main Body (SQFT) 630
Year Built 2004
Additions 4
Effective Year 2004
Remodeled 0
Interior Adj.
Other Features
Building Total & Improvement Details

Grade C+5 105%
Percentage Complete 100
Total Adjusted Replacement Cost New $325,304
Physical Depreciation (% Bad) 0%
Depreciated Value $260,243
Economic Depreciation (% Bad) 0%
Functional Depreciation (% Bad) 0%
Total Depreciated Value $260,243
Market Area Factor 1.00
Building Value $260,243
Misc Improvements Value
Total Improvement Value $260,243

Assessed Land Value $84,000
   
Assessed Total Value $344,243



Addition Summary 
StoryTypeCodeArea
1.00 Concrete Slab 16B 120
1.00 Terrace/Raised Patio 16T 30
1.00 Res Frame 2Nd Flr FR02 630
1.00 Lower Living Area LL 630
 
Other Improvements 
UnitsDescriptionItemCodeYear% BadValue
8x8 DIMENSIONS Shed Personal Property 2004 75
 


Building Sketch
Photograph
Building Sketch Building Photo
(Click sketch for bigger image)




Copyright © 2022 Durham County, North Carolina.