Building Summary

Data last updated on: 4/2/2026     Ownership current as of: 3/30/2026     Tax Year: 2026
REID 197416

PIN # 0834-12-6030

Location Address Property Description
313 WEEPING WILLOW DR SUMMER MDW SGL FMLY/PH:02 /LT#226 PL:000159-000333
   
Property Owner Owner's Mailing Address
PELLETIER, IAN JAMES HUNTER;WILLIAMS, KATHERINE ELIZABETH
313 WEEPING WILLOW DR
DURHAM NC 27704
Parcel
Buildings
Misc Improvements
Land
Deeds
Notes
Sales
Photos
Map
Building Location Address
313 WEEPING WILLOW DR
Building Description
RESFR-RES-FRM-OR-EQ
Card   of  1
Bldg Type RESIDENTIAL
Units 1
Living Area (SQFT) 1976
Number of Stories 2.00
Style CON-CONVENTIONAL
Foundation 03-CONTINOUS-SLAB
Exterior 08-VINYL/ALUMINUM
Const Type
Heating 06-HEAT-PUMP
Air Cond
Plumbing Baths (Full):   2
Baths (Half):   1
Extra Fixtures:   0
Total Plumbing Fixtures:   8 
Bedrooms 4
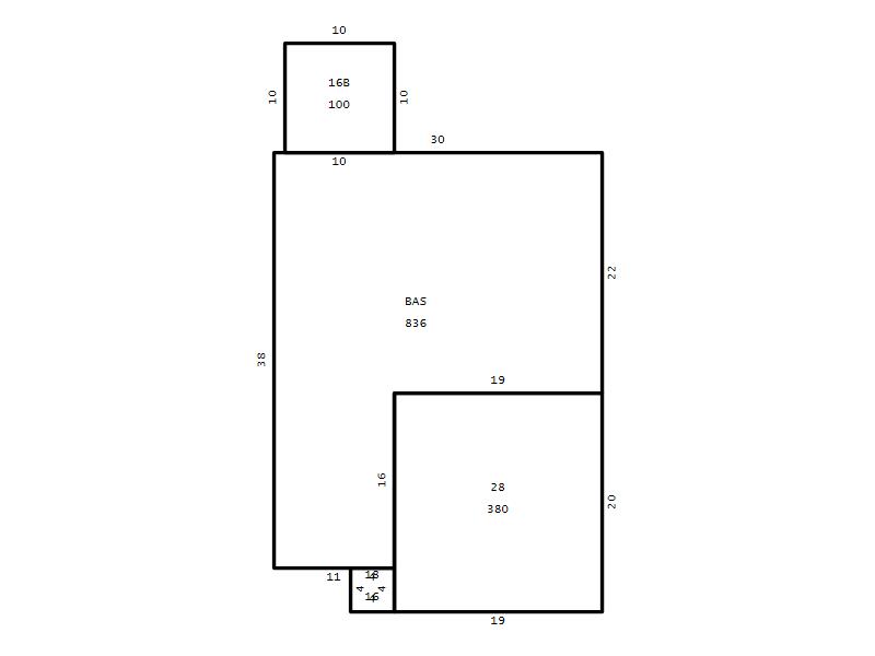
Main Body (SQFT) 836
Year Built 2006
Additions 5
Effective Year 2006
Remodeled 0
Interior Adj.
Other Features
Building Total & Improvement Details

Grade C 100%
Percentage Complete 100
Total Adjusted Replacement Cost New $328,586
Physical Depreciation (% Bad) 0%
Depreciated Value $266,155
Economic Depreciation (% Bad) 0%
Functional Depreciation (% Bad) 0%
Total Depreciated Value $266,155
Market Area Factor 1.00
Building Value $266,155
Misc Improvements Value $111
Total Improvement Value $266,266

Assessed Land Value $70,000
   
Assessed Total Value $336,266



Addition Summary 
StoryTypeCodeArea
1.00 Concrete Slab 16B 100
1.00 Covered Porch 18 16
1.00 Garage 28 380
1.00 Res Frame 2Nd Flr FR02 836
1.00 Res Frm 2Nd Flr Over Garg FR02 304
 
Other Improvements 
UnitsDescriptionItemCodeYear% BadValue
6x8 DIMENSIONS Shed (Open Pole) 2006 75 111
 


Building Sketch
Photograph
Building Sketch Building Photo
(Click sketch for bigger image)




Copyright © 2022 Durham County, North Carolina.