Building Summary

Data last updated on: 4/2/2026     Ownership current as of: 3/30/2026     Tax Year: 2026
REID 197429

PIN # 0834-22-2183

Location Address Property Description
402 WEEPING WILLOW DR SUMMER MDW SGL FMLY/PH:02 /LT#246 PL:000159-000333
   
Property Owner Owner's Mailing Address
BAF ASSETS 3 LLC
3903 S CONGRESS AVE STE 40298
AUSTIN TX 78704
Parcel
Buildings
Misc Improvements
Land
Deeds
Notes
Sales
Photos
Map
Building Location Address
402 WEEPING WILLOW DR
Building Description
RESFR-RES-FRM-OR-EQ
Card   of  1
Bldg Type RESIDENTIAL
Units 1
Living Area (SQFT) 1548
Number of Stories 2.00
Style CON-CONVENTIONAL
Foundation 03-CONTINOUS-SLAB
Exterior 08-VINYL/ALUMINUM
Const Type
Heating 06-HEAT-PUMP
Air Cond
Plumbing Baths (Full):   2
Baths (Half):   1
Extra Fixtures:   0
Total Plumbing Fixtures:   8 
Bedrooms 3
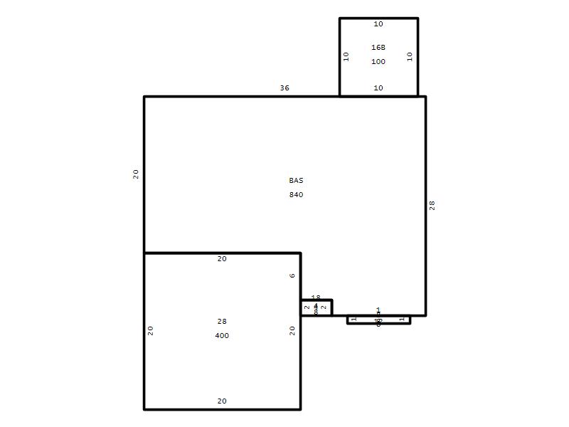
Main Body (SQFT) 840
Year Built 2004
Additions 6
Effective Year 2004
Remodeled 0
Interior Adj.
Other Features
Building Total & Improvement Details

Grade C 100%
Percentage Complete 100
Total Adjusted Replacement Cost New $279,503
Physical Depreciation (% Bad) 0%
Depreciated Value $223,602
Economic Depreciation (% Bad) 0%
Functional Depreciation (% Bad) 0%
Total Depreciated Value $223,602
Market Area Factor 1.00
Building Value $223,602
Misc Improvements Value
Total Improvement Value $223,602

Assessed Land Value $71,875
   
Assessed Total Value $295,477



Addition Summary 
StoryTypeCodeArea
1.00 Overhang 01 8
1.00 Concrete Slab 16B 100
1.00 Covered Porch 18 8
1.00 Garage 28 400
1.00 Res Frame 2Nd Flr FR02 400
1.00 Res Frm 2Nd Flr Over Garg FR02 300
 
Other Improvements 
 


Building Sketch
Photograph
Building Sketch Building Photo
(Click sketch for bigger image)




Copyright © 2022 Durham County, North Carolina.