Building Summary

Data last updated on: 4/2/2026     Ownership current as of: 3/30/2026     Tax Year: 2026
REID 197455

PIN # 0834-21-5872

Location Address Property Description
111 BIG LEAF WAY SUMMER MDW SGL FMLY/PH:02 /LT#256 PL:000159-000335
   
Property Owner Owner's Mailing Address
GUZMAN, RUBEN;GUZMAN, CARMEN
111 BIG LEAF WAY
DURHAM NC 27704
Parcel
Buildings
Misc Improvements
Land
Deeds
Notes
Sales
Photos
Map
Building Location Address
111 BIG LEAF WAY
Building Description
RESFR-RES-FRM-OR-EQ
Card   of  1
Bldg Type RESIDENTIAL
Units 1
Living Area (SQFT) 1540
Number of Stories 2.00
Style CON-CONVENTIONAL
Foundation 03-CONTINOUS-SLAB
Exterior 08-VINYL/ALUMINUM
Const Type
Heating 06-HEAT-PUMP
Air Cond
Plumbing Baths (Full):   2
Baths (Half):   1
Extra Fixtures:   0
Total Plumbing Fixtures:   8 
Bedrooms 3
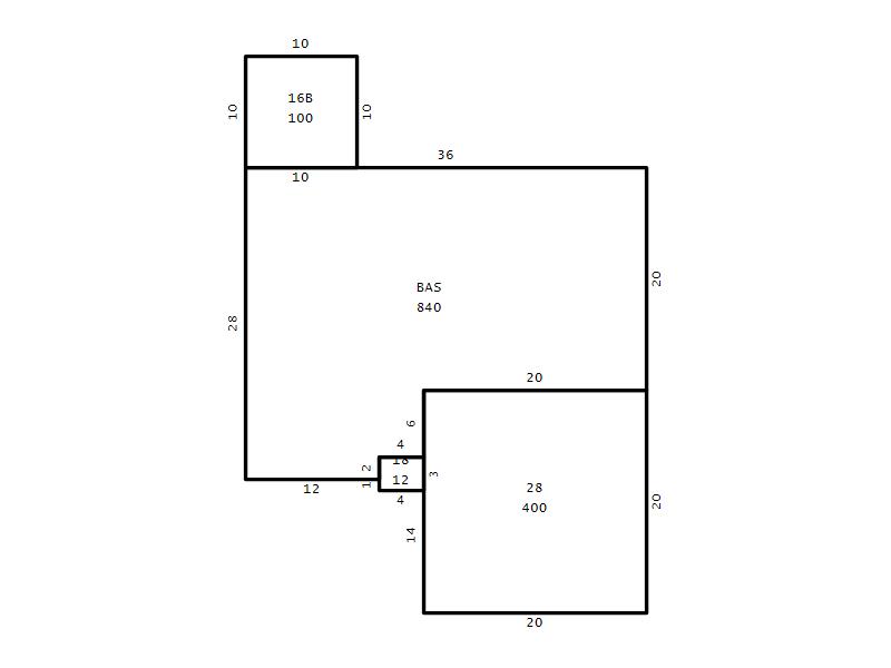
Main Body (SQFT) 840
Year Built 2005
Additions 5
Effective Year 2005
Remodeled 0
Interior Adj.
Other Features
Building Total & Improvement Details

Grade C 100%
Percentage Complete 100
Total Adjusted Replacement Cost New $278,707
Physical Depreciation (% Bad) 0%
Depreciated Value $239,688
Economic Depreciation (% Bad) 0%
Functional Depreciation (% Bad) 0%
Total Depreciated Value $239,688
Market Area Factor 1.00
Building Value $239,688
Misc Improvements Value
Total Improvement Value $239,688

Assessed Land Value $71,250
   
Assessed Total Value $310,938



Addition Summary 
StoryTypeCodeArea
1.00 Concrete Slab 16B 100
1.00 Covered Porch 18 12
1.00 Garage 28 400
1.00 Res Frame 2Nd Flr FR02 400
1.00 Res Frm 2Nd Flr Over Garg FR02 300
 
Other Improvements 
 


Building Sketch
Photograph
Building Sketch Building Photo
(Click sketch for bigger image)




Copyright © 2022 Durham County, North Carolina.