Building Summary

Data last updated on: 4/2/2026     Ownership current as of: 3/30/2026     Tax Year: 2026
REID 198440

PIN # 0851-60-3714

Location Address Property Description
208 LICK CREEK LN GROVE PRK LAKESD HAMPSTEA D/LT#24 PL:000160-000347
   
Property Owner Owner's Mailing Address
GARCIA, LILIANA ZULEYMA FERRUFINO
208 LICK CREEK LN
DURHAM NC 27703
Parcel
Buildings
Misc Improvements
Land
Deeds
Notes
Sales
Photos
Map
Building Location Address
208 LICK CREEK LN
Building Description
RESFR-RES-FRM-OR-EQ
Card   of  1
Bldg Type RESIDENTIAL
Units 1
Living Area (SQFT) 3144
Number of Stories 2.00
Style CON-CONVENTIONAL
Foundation 03-CONTINOUS-SLAB
Exterior 08-VINYL/ALUMINUM
Const Type
Heating 05-PACKAGE-HEAT/COOL
Air Cond
Plumbing Baths (Full):   2
Baths (Half):   1
Extra Fixtures:   0
Total Plumbing Fixtures:   8 
Bedrooms 4
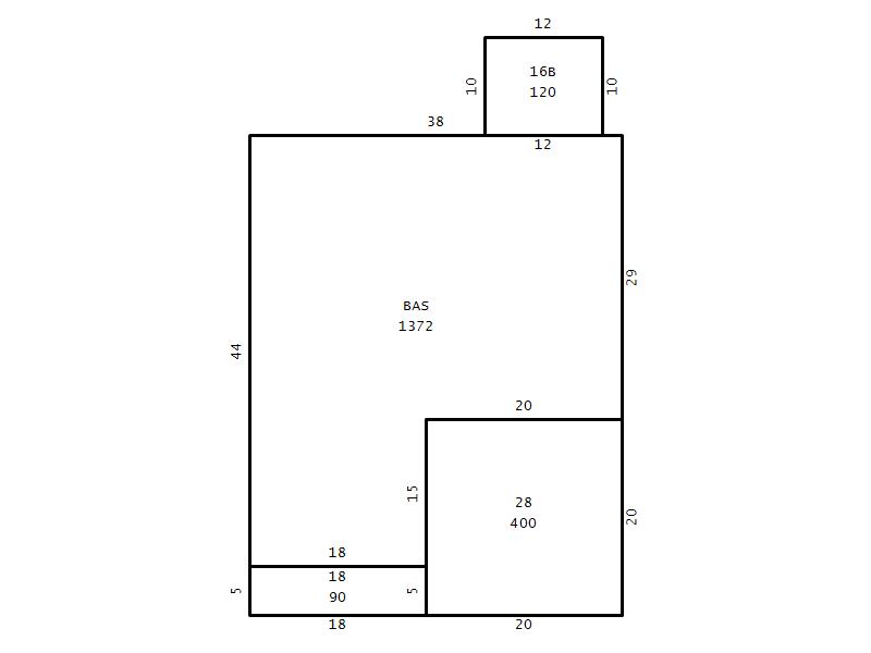
Main Body (SQFT) 1372
Year Built 2007
Additions 5
Effective Year 2007
Remodeled 0
Interior Adj.
Other Features
Building Total & Improvement Details

Grade B+5 125%
Percentage Complete 100
Total Adjusted Replacement Cost New $556,447
Physical Depreciation (% Bad) 0%
Depreciated Value $456,287
Economic Depreciation (% Bad) 0%
Functional Depreciation (% Bad) 0%
Total Depreciated Value $456,287
Market Area Factor 1.00
Building Value $456,287
Misc Improvements Value
Total Improvement Value $456,287

Assessed Land Value $72,527
   
Assessed Total Value $528,814



Addition Summary 
StoryTypeCodeArea
1.00 Concrete Slab 16B 120
1.00 Covered Porch 18 90
1.00 Garage 28 400
1.00 Res Frame 2Nd Flr FR02 1372
1.00 Res Frm 2Nd Flr Over Garg FR02 400
 
Other Improvements 
 


Building Sketch
Photograph
Building Sketch Building Photo
(Click sketch for bigger image)




Copyright © 2022 Durham County, North Carolina.