Building Summary

Data last updated on: 4/2/2026     Ownership current as of: 3/30/2026     Tax Year: 2026
REID 198780

PIN # 0840-68-8985

Location Address Property Description
3108 FORRESTAL DR LYNN HOLLOW/PH:04/LT#14 PL:000161-000204
   
Property Owner Owner's Mailing Address
LUNA, ELIAS;LUNA, KENDRA
3108 FORRESTAL DR
DURHAM NC 27703
Parcel
Buildings
Misc Improvements
Land
Deeds
Notes
Sales
Photos
Map
Building Location Address
3108 FORRESTAL DR
Building Description
RESFR-RES-FRM-OR-EQ
Card   of  1
Bldg Type RESIDENTIAL
Units 1
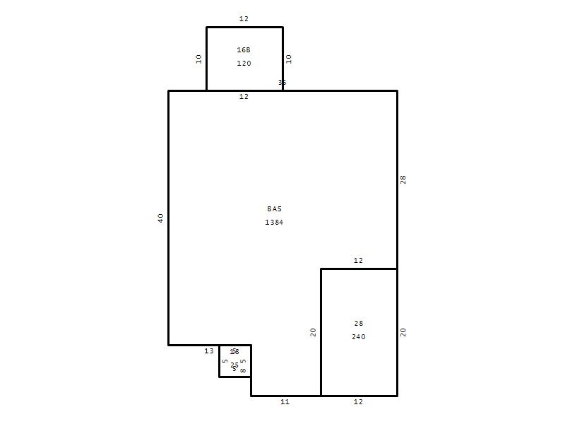
Living Area (SQFT) 1384
Number of Stories 1.00
Style RAN-RANCH
Foundation 03-CONTINOUS-SLAB
Exterior 08-VINYL/ALUMINUM
Const Type
Heating 05-PACKAGE-HEAT/COOL
Air Cond
Plumbing Baths (Full):   2
Baths (Half):   0
Extra Fixtures:   0
Total Plumbing Fixtures:   6 
Bedrooms 3
Main Body (SQFT) 1384
Year Built 2006
Additions 3
Effective Year 2006
Remodeled 0
Interior Adj.
Other Features
Building Total & Improvement Details

Grade C+5 105%
Percentage Complete 100
Total Adjusted Replacement Cost New $262,155
Physical Depreciation (% Bad) 0%
Depreciated Value $212,346
Economic Depreciation (% Bad) 0%
Functional Depreciation (% Bad) 0%
Total Depreciated Value $212,346
Market Area Factor 1.00
Building Value $212,346
Misc Improvements Value
Total Improvement Value $212,346

Assessed Land Value $78,400
   
Assessed Total Value $290,746



Addition Summary 
StoryTypeCodeArea
1.00 Concrete Slab 16B 120
1.00 Covered Porch 18 25
1.00 Garage 28 240
 
Other Improvements 
 


Building Sketch
Photograph
Building Sketch Building Photo
(Click sketch for bigger image)




Copyright © 2022 Durham County, North Carolina.