Building Summary

Data last updated on: 4/2/2026     Ownership current as of: 3/30/2026     Tax Year: 2026
REID 198798

PIN # 0824-42-6004

Location Address Property Description
916 WOODSIDE PARK LN HORTON HILLS/SEC:09/PH:03 /LT#151 PL:000161-000186
   
Property Owner Owner's Mailing Address
DITTLER, DENISE ANNE;DITTLER, JONATHAN ALLAN
916 WOODSIDE PARK LN
DURHAM NC 27704
Parcel
Buildings
Misc Improvements
Land
Deeds
Notes
Sales
Photos
Map
Building Location Address
916 WOODSIDE PARK LN
Building Description
RESFR-RES-FRM-OR-EQ
Card   of  1
Bldg Type RESIDENTIAL
Units 1
Living Area (SQFT) 1936
Number of Stories 2.00
Style CON-CONVENTIONAL
Foundation 03-CONTINOUS-SLAB
Exterior 08-VINYL/ALUMINUM
Const Type
Heating 05-PACKAGE-HEAT/COOL
Air Cond
Plumbing Baths (Full):   2
Baths (Half):   1
Extra Fixtures:   0
Total Plumbing Fixtures:   8 
Bedrooms 3
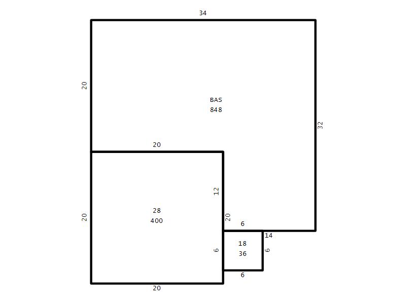
Main Body (SQFT) 848
Year Built 2005
Additions 4
Effective Year 2005
Remodeled 0
Interior Adj.
Other Features
Building Total & Improvement Details

Grade C+ 110%
Percentage Complete 100
Total Adjusted Replacement Cost New $355,659
Physical Depreciation (% Bad) 0%
Depreciated Value $288,084
Economic Depreciation (% Bad) 0%
Functional Depreciation (% Bad) 0%
Total Depreciated Value $288,084
Market Area Factor 1.00
Building Value $288,084
Misc Improvements Value
Total Improvement Value $288,084

Assessed Land Value $107,100
   
Assessed Total Value $395,184



Addition Summary 
StoryTypeCodeArea
1.00 Covered Porch 18 36
1.00 Garage 28 400
1.00 Res Frame 2Nd Flr FR02 848
1.00 Res Frm 2Nd Flr Over Garg FR02 240
 
Other Improvements 
 


Building Sketch
Photograph
Building Sketch Building Photo
(Click sketch for bigger image)




Copyright © 2022 Durham County, North Carolina.