Building Summary

Data last updated on: 4/2/2026     Ownership current as of: 3/30/2026     Tax Year: 2026
REID 198799

PIN # 0824-42-6073

Location Address Property Description
914 WOODSIDE PARK LN HORTON HILLS/SEC:09/PH:03 /LT#152 PL:000161-000186
   
Property Owner Owner's Mailing Address
IH6 PROPERTY NORTH CAROLINA LP
PO BOX 4900
SCOTTSDALE AZ 85261
Parcel
Buildings
Misc Improvements
Land
Deeds
Notes
Sales
Photos
Map
Building Location Address
914 WOODSIDE PARK LN
Building Description
RESFR-RES-FRM-OR-EQ
Card   of  1
Bldg Type RESIDENTIAL
Units 1
Living Area (SQFT) 1608
Number of Stories 2.00
Style CON-CONVENTIONAL
Foundation 03-CONTINOUS-SLAB
Exterior 08-VINYL/ALUMINUM
Const Type
Heating 06-HEAT-PUMP
Air Cond
Plumbing Baths (Full):   2
Baths (Half):   1
Extra Fixtures:   0
Total Plumbing Fixtures:   8 
Bedrooms 3
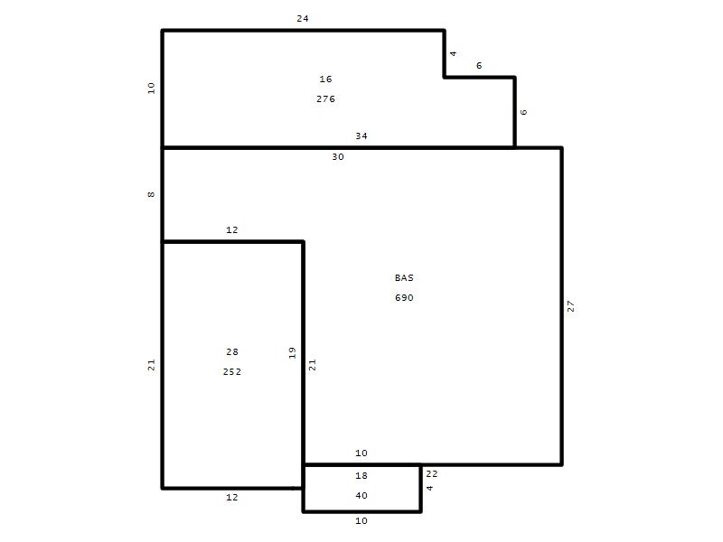
Main Body (SQFT) 690
Year Built 2006
Additions 5
Effective Year 2006
Remodeled 0
Interior Adj.
Other Features
Building Total & Improvement Details

Grade C+ 110%
Percentage Complete 100
Total Adjusted Replacement Cost New $310,681
Physical Depreciation (% Bad) 0%
Depreciated Value $251,652
Economic Depreciation (% Bad) 0%
Functional Depreciation (% Bad) 0%
Total Depreciated Value $251,652
Market Area Factor 1.00
Building Value $251,652
Misc Improvements Value
Total Improvement Value $251,652

Assessed Land Value $106,200
   
Assessed Total Value $357,852



Addition Summary 
StoryTypeCodeArea
1.00 Frame Deck 16 276
1.00 Covered Porch 18 40
1.00 Garage 28 252
1.00 Res Frame 2Nd Flr FR02 690
1.00 Res Frm 2Nd Flr Over Garg FR02 228
 
Other Improvements 
 


Building Sketch
Photograph
Building Sketch Building Photo
(Click sketch for bigger image)




Copyright © 2022 Durham County, North Carolina.