Building Summary

Data last updated on: 4/2/2026     Ownership current as of: 3/30/2026     Tax Year: 2026
REID 198833

PIN # 0824-51-1749

Location Address Property Description
818 WOODSIDE PARK LN HORTON HILLS/SEC:09/PH:03 /LT#162 PL:000161-000188
   
Property Owner Owner's Mailing Address
HARFORD, MATTHEW JOHN;HARFORD, VICTORIA HALBROOKS
818 WOODSIDE PARK LN
DURHAM NC 27704
Parcel
Buildings
Misc Improvements
Land
Deeds
Notes
Sales
Photos
Map
Building Location Address
818 WOODSIDE PARK LN
Building Description
RESFR-RES-FRM-OR-EQ
Card   of  1
Bldg Type RESIDENTIAL
Units 1
Living Area (SQFT) 1596
Number of Stories 2.00
Style CON-CONVENTIONAL
Foundation 03-CONTINOUS-SLAB
Exterior 08-VINYL/ALUMINUM
Const Type
Heating 06-HEAT-PUMP
Air Cond
Plumbing Baths (Full):   2
Baths (Half):   1
Extra Fixtures:   0
Total Plumbing Fixtures:   8 
Bedrooms 3
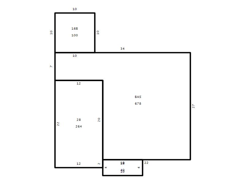
Main Body (SQFT) 678
Year Built 2007
Additions 5
Effective Year 2007
Remodeled 0
Interior Adj.
Other Features
Building Total & Improvement Details

Grade C+ 110%
Percentage Complete 100
Total Adjusted Replacement Cost New $302,022
Physical Depreciation (% Bad) 0%
Depreciated Value $247,658
Economic Depreciation (% Bad) 0%
Functional Depreciation (% Bad) 0%
Total Depreciated Value $247,658
Market Area Factor 1.00
Building Value $247,658
Misc Improvements Value
Total Improvement Value $247,658

Assessed Land Value $102,600
   
Assessed Total Value $350,258



Addition Summary 
StoryTypeCodeArea
1.00 Concrete Slab 16B 100
1.00 Covered Porch 18 40
1.00 Garage 28 264
1.00 Res Frame 2Nd Flr FR02 678
1.00 Res Frm 2Nd Flr Over Garg FR02 240
 
Other Improvements 
 


Building Sketch
Photograph
Building Sketch Building Photo
(Click sketch for bigger image)




Copyright © 2022 Durham County, North Carolina.