Building Summary

Data last updated on: 4/2/2026     Ownership current as of: 3/30/2026     Tax Year: 2026
REID 198857

PIN # 0824-51-1630

Location Address Property Description
815 WOODSIDE PARK LN HORTON HILLS/SEC:09/PH:03 /LT#198 PL:000161-000188
   
Property Owner Owner's Mailing Address
CUBBIN, COURTNEY DOROTHY;HAMRICK, GRAYSON SCOTT
815 WOODSIDE PARK LN
DURHAM NC 27704
Parcel
Buildings
Misc Improvements
Land
Deeds
Notes
Sales
Photos
Map
Building Location Address
815 WOODSIDE PARK LN
Building Description
RESFR-RES-FRM-OR-EQ
Card   of  1
Bldg Type RESIDENTIAL
Units 1
Living Area (SQFT) 1460
Number of Stories 2.00
Style CON-CONVENTIONAL
Foundation 03-CONTINOUS-SLAB
Exterior 08-VINYL/ALUMINUM
Const Type
Heating 05-PACKAGE-HEAT/COOL
Air Cond
Plumbing Baths (Full):   2
Baths (Half):   1
Extra Fixtures:   0
Total Plumbing Fixtures:   8 
Bedrooms 3
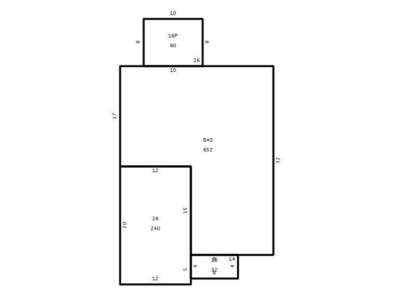
Main Body (SQFT) 652
Year Built 2009
Additions 5
Effective Year 2009
Remodeled 0
Interior Adj.
Other Features
Building Total & Improvement Details

Grade C+ 110%
Percentage Complete 100
Total Adjusted Replacement Cost New $287,301
Physical Depreciation (% Bad) 0%
Depreciated Value $241,333
Economic Depreciation (% Bad) 0%
Functional Depreciation (% Bad) 0%
Total Depreciated Value $241,333
Market Area Factor 1.00
Building Value $241,333
Misc Improvements Value
Total Improvement Value $241,333

Assessed Land Value $100,800
   
Assessed Total Value $342,133



Addition Summary 
StoryTypeCodeArea
1.00 Patio 16P 80
1.00 Covered Porch 18 32
1.00 Garage 28 240
1.00 Res Frame 2Nd Flr FR02 652
1.00 Res Frm 2Nd Flr Over Garg FR02 156
 
Other Improvements 
 


Building Sketch
Photograph
Building Sketch Building Photo
(Click sketch for bigger image)




Copyright © 2022 Durham County, North Carolina.