Building Summary

Data last updated on: 1/30/2026     Ownership current as of: 1/16/2026     Tax Year: 2026
REID 199057

PIN # 0759-02-2203

Location Address Property Description
4821 ROCKPORT DR BRADBURY TRACE/LT#124 PL:000161-000234
   
Property Owner Owner's Mailing Address
HUDSON, TESSA;HUDSON, DYLAN
4821 ROCKPORT DR
DURHAM NC 27703
Parcel
Buildings
Misc Improvements
Land
Deeds
Notes
Sales
Photos
Map
Building Location Address
4821 ROCKPORT DR
Building Description
RESFR-RES-FRM-OR-EQ
Card   of  1
Bldg Type RESIDENTIAL
Units 1
Living Area (SQFT) 2530
Number of Stories 2.00
Style CON-CONVENTIONAL
Foundation 03-CONTINOUS-SLAB
Exterior 08-VINYL/ALUMINUM
Const Type
Heating 05-PACKAGE-HEAT/COOL
Air Cond
Plumbing Baths (Full):   2
Baths (Half):   1
Extra Fixtures:   0
Total Plumbing Fixtures:   8 
Bedrooms 4
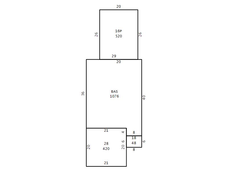
Main Body (SQFT) 1076
Year Built 2005
Additions 5
Effective Year 2005
Remodeled 0
Interior Adj.
Other Features
Building Total & Improvement Details

Grade C+20 120%
Percentage Complete 100
Total Adjusted Replacement Cost New $470,780
Physical Depreciation (% Bad) 0%
Depreciated Value $404,871
Economic Depreciation (% Bad) 0%
Functional Depreciation (% Bad) 0%
Total Depreciated Value $404,871
Market Area Factor 0.95
Building Value $384,627
Misc Improvements Value
Total Improvement Value $384,627

Assessed Land Value $101,500
   
Assessed Total Value $486,127



Addition Summary 
StoryTypeCodeArea
1.00 Patio 16P 520
1.00 Covered Porch 18 48
1.00 Garage 28 420
1.00 Res Frame 2Nd Flr FR02 1076
1.00 Res Frm 2Nd Flr Over Garg FR02 378
 
Other Improvements 
 


Building Sketch
Photograph
Building Sketch Building Photo
(Click sketch for bigger image)




Copyright © 2022 Durham County, North Carolina.