Building Summary

Data last updated on: 4/2/2026     Ownership current as of: 3/30/2026     Tax Year: 2026
REID 199556

PIN # 0821-92-3457

Location Address Property Description
311 BURNETTE ST PROP-HERNDON & HERNDON CO NSTRUCTION LLC/LT#02 PL:000162-000087
   
Property Owner Owner's Mailing Address
OPENDOOR PROPERTY TRUST I
410 N SCOTTSDALE RD STE 1600
TEMPE AZ 85288
Parcel
Buildings
Misc Improvements
Land
Deeds
Notes
Sales
Photos
Map
Building Location Address
311 BURNETTE ST
Building Description
RESFR-RES-FRM-OR-EQ
Card   of  1
Bldg Type RESIDENTIAL
Units 1
Living Area (SQFT) 1280
Number of Stories 2.00
Style CON-CONVENTIONAL
Foundation 04-P-FOOTING/CRWL-SP
Exterior 08-VINYL/ALUMINUM
Const Type
Heating 05-PACKAGE-HEAT/COOL
Air Cond
Plumbing Baths (Full):   2
Baths (Half):   1
Extra Fixtures:   0
Total Plumbing Fixtures:   8 
Bedrooms 3
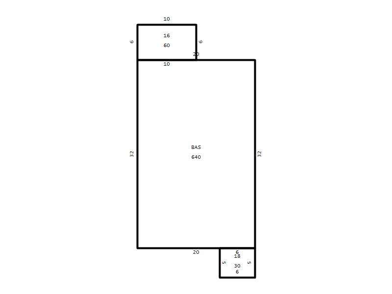
Main Body (SQFT) 640
Year Built 2004
Additions 3
Effective Year 2004
Remodeled 0
Interior Adj.
Other Features
Building Total & Improvement Details

Grade C 100%
Percentage Complete 100
Total Adjusted Replacement Cost New $236,988
Physical Depreciation (% Bad) 0%
Depreciated Value $201,440
Economic Depreciation (% Bad) 0%
Functional Depreciation (% Bad) 0%
Total Depreciated Value $201,440
Market Area Factor 1.00
Building Value $201,440
Misc Improvements Value
Total Improvement Value $201,440

Assessed Land Value $98,000
   
Assessed Total Value $299,440



Addition Summary 
StoryTypeCodeArea
1.00 Frame Deck 16 60
1.00 Covered Porch 18 30
1.00 Res Frame 2Nd Flr FR02 640
 
Other Improvements 
 


Building Sketch
Photograph
Building Sketch Building Photo
(Click sketch for bigger image)




Copyright © 2022 Durham County, North Carolina.