Building Summary

Data last updated on: 4/2/2026     Ownership current as of: 3/30/2026     Tax Year: 2026
REID 199558

PIN # 0833-48-1150

Location Address Property Description
804 FANNING WAY VLGINDPK 2/JEF/PH:02/LT#3 0 PL:000162-000119
   
Property Owner Owner's Mailing Address
DENOYELLES, SHANE
804 FANNING WAY
DURHAM NC 27704
Parcel
Buildings
Misc Improvements
Land
Deeds
Notes
Sales
Photos
Map
Building Location Address
804 FANNING WAY
Building Description
RESFR-RES-FRM-OR-EQ
Card   of  1
Bldg Type RESIDENTIAL
Units 1
Living Area (SQFT) 1976
Number of Stories 2.00
Style CON-CONVENTIONAL
Foundation 04-P-FOOTING/CRWL-SP
Exterior 08-VINYL/ALUMINUM
Const Type
Heating 05-PACKAGE-HEAT/COOL
Air Cond
Plumbing Baths (Full):   2
Baths (Half):   1
Extra Fixtures:   0
Total Plumbing Fixtures:   8 
Bedrooms 3
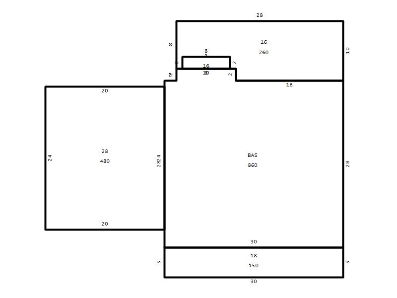
Main Body (SQFT) 860
Year Built 2005
Additions 6
Effective Year 2005
Remodeled 0
Interior Adj.
Other Features
Building Total & Improvement Details

Grade B-5 115%
Percentage Complete 100
Total Adjusted Replacement Cost New $414,468
Physical Depreciation (% Bad) 0%
Depreciated Value $335,719
Economic Depreciation (% Bad) 0%
Functional Depreciation (% Bad) 0%
Total Depreciated Value $335,719
Market Area Factor 1.00
Building Value $335,719
Misc Improvements Value
Total Improvement Value $335,719

Assessed Land Value $72,600
   
Assessed Total Value $408,319



Addition Summary 
StoryTypeCodeArea
1.00 Bay Window 03 16
1.00 Frame Deck 16 260
1.00 Covered Porch 18 150
1.00 Garage 28 480
1.00 Res Frame 2Nd Flr FR02 860
1.00 Res Frm 2Nd Flr Over Garg FR02 240
 
Other Improvements 
 


Building Sketch
Photograph
Building Sketch Building Photo
(Click sketch for bigger image)




Copyright © 2022 Durham County, North Carolina.