Building Summary

Data last updated on: 4/2/2026     Ownership current as of: 3/30/2026     Tax Year: 2026
REID 199563

PIN # 0833-47-4836

Location Address Property Description
814 FANNING WAY VLGINDPK 2/JEF/PH:02/LT#3 5 PL:000162-000119
   
Property Owner Owner's Mailing Address
SERIO, KYLE ANTHONY;OLSON, REBECCA ROSE
814 FANNING WAY
DURHAM NC 27704
Parcel
Buildings
Misc Improvements
Land
Deeds
Notes
Sales
Photos
Map
Building Location Address
814 FANNING WAY
Building Description
RESFR-RES-FRM-OR-EQ
Card   of  1
Bldg Type RESIDENTIAL
Units 1
Living Area (SQFT) 2016
Number of Stories 2.00
Style CON-CONVENTIONAL
Foundation 04-P-FOOTING/CRWL-SP
Exterior 08-VINYL/ALUMINUM
Const Type
Heating 05-PACKAGE-HEAT/COOL
Air Cond
Plumbing Baths (Full):   2
Baths (Half):   1
Extra Fixtures:   0
Total Plumbing Fixtures:   8 
Bedrooms 3
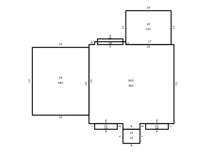
Main Body (SQFT) 863
Year Built 2006
Additions 8
Effective Year 2006
Remodeled 0
Interior Adj.
Other Features
Building Total & Improvement Details

Grade B-5 115%
Percentage Complete 100
Total Adjusted Replacement Cost New $410,959
Physical Depreciation (% Bad) 0%
Depreciated Value $332,877
Economic Depreciation (% Bad) 0%
Functional Depreciation (% Bad) 0%
Total Depreciated Value $332,877
Market Area Factor 1.00
Building Value $332,877
Misc Improvements Value $3,988
Total Improvement Value $336,865

Assessed Land Value $76,800
   
Assessed Total Value $413,665



Addition Summary 
StoryTypeCodeArea
1.00 Bay Window 03 18
1.00 Frame Deck 16 192
1.00 Covered Porch 18 30
1.00 Garage 28 480
1.00 Bay Window 03 16
1.00 Bay Window 03 16
1.00 Res Frame 2Nd Flr FR02 863
1.00 Res Frm 2Nd Flr Over Garg FR02 240
 
Other Improvements 
UnitsDescriptionItemCodeYear% BadValue
14x20 DIMENSIONS Patio 2010 25 3988
 


Building Sketch
Photograph
Building Sketch Building Photo
(Click sketch for bigger image)




Copyright © 2022 Durham County, North Carolina.