Building Summary

Data last updated on: 4/2/2026     Ownership current as of: 3/30/2026     Tax Year: 2026
REID 199570

PIN # 0833-48-2237

Location Address Property Description
805 FANNING WAY VLGINDPK 2/JEF/PH:02/LT#4 2 PL:000162-000119
   
Property Owner Owner's Mailing Address
LEVY, CARMIT
805 FANNING WAY
DURHAM NC 27704
Parcel
Buildings
Misc Improvements
Land
Deeds
Notes
Sales
Photos
Map
Building Location Address
805 FANNING WAY
Building Description
RESFR-RES-FRM-OR-EQ
Card   of  1
Bldg Type RESIDENTIAL
Units 1
Living Area (SQFT) 2366
Number of Stories 2.00
Style CON-CONVENTIONAL
Foundation 04-P-FOOTING/CRWL-SP
Exterior 08-VINYL/ALUMINUM
Const Type
Heating 05-PACKAGE-HEAT/COOL
Air Cond
Plumbing Baths (Full):   2
Baths (Half):   1
Extra Fixtures:   0
Total Plumbing Fixtures:   8 
Bedrooms 3
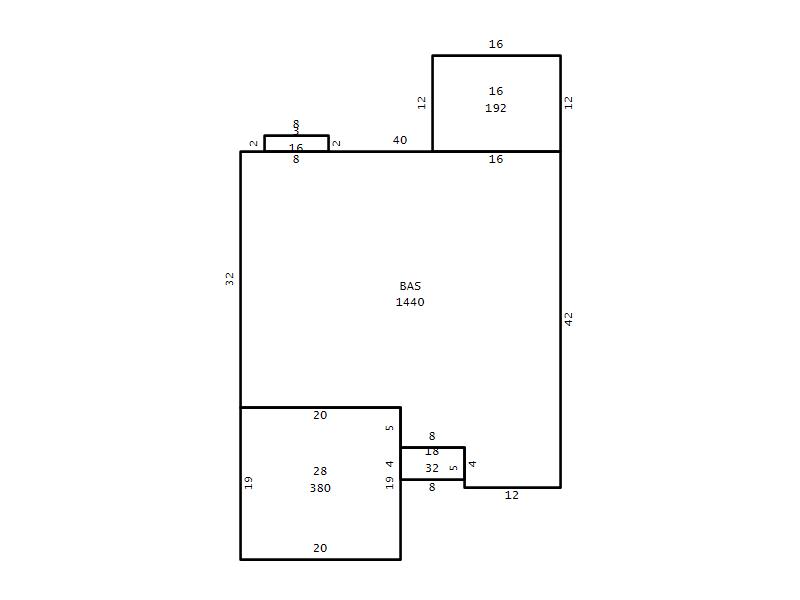
Main Body (SQFT) 1440
Year Built 2006
Additions 6
Effective Year 2006
Remodeled 0
Interior Adj.
Other Features
Building Total & Improvement Details

Grade B-5 115%
Percentage Complete 100
Total Adjusted Replacement Cost New $446,465
Physical Depreciation (% Bad) 0%
Depreciated Value $361,637
Economic Depreciation (% Bad) 0%
Functional Depreciation (% Bad) 0%
Total Depreciated Value $361,637
Market Area Factor 1.00
Building Value $361,637
Misc Improvements Value
Total Improvement Value $361,637

Assessed Land Value $75,000
   
Assessed Total Value $436,637



Addition Summary 
StoryTypeCodeArea
1.00 Bay Window 03 16
1.00 Frame Deck 16 192
1.00 Covered Porch 18 32
1.00 Garage 28 380
1.00 Res Frame 2Nd Flr FR02 720
1.00 Res Frm 2Nd Flr Over Garg FR02 190
 
Other Improvements 
 


Building Sketch
Photograph
Building Sketch Building Photo
(Click sketch for bigger image)




Copyright © 2022 Durham County, North Carolina.