Building Summary

Data last updated on: 4/2/2026     Ownership current as of: 3/30/2026     Tax Year: 2026
REID 199574

PIN # 0833-38-6315

Location Address Property Description
705 FANNING WAY VLGINDPK 2/JEF/PH:02/LT#4 6 PL:000162-000122
   
Property Owner Owner's Mailing Address
MCH, SFR NC OWNER 1 LP
14355 COMMERCE WY
MIAMI LAKES FL 33016
Parcel
Buildings
Misc Improvements
Land
Deeds
Notes
Sales
Photos
Map
Building Location Address
705 FANNING WAY
Building Description
RESFR-RES-FRM-OR-EQ
Card   of  1
Bldg Type RESIDENTIAL
Units 1
Living Area (SQFT) 2040
Number of Stories 2.00
Style CON-CONVENTIONAL
Foundation 04-P-FOOTING/CRWL-SP
Exterior 08-VINYL/ALUMINUM
Const Type
Heating 05-PACKAGE-HEAT/COOL
Air Cond
Plumbing Baths (Full):   2
Baths (Half):   1
Extra Fixtures:   0
Total Plumbing Fixtures:   8 
Bedrooms 4
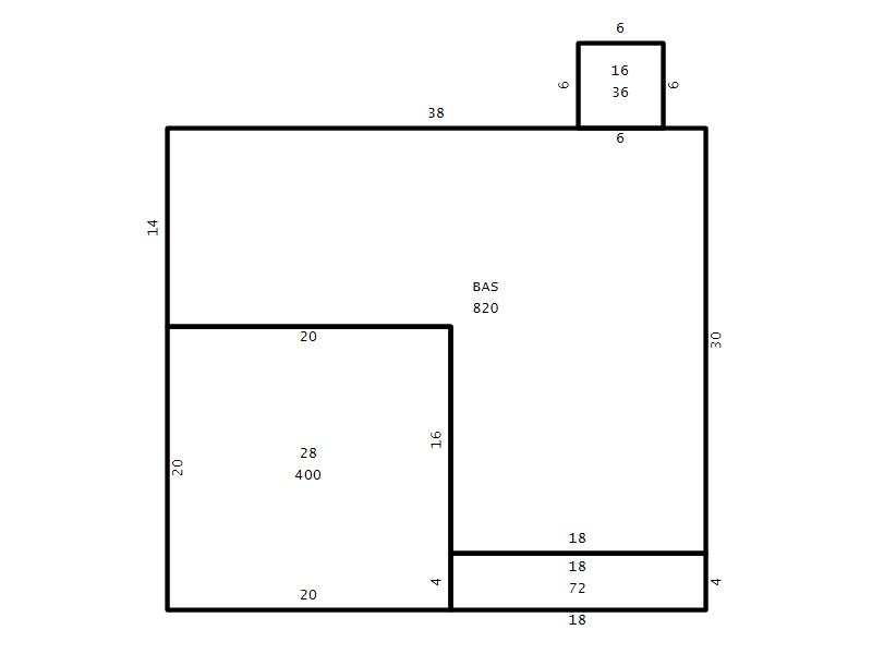
Main Body (SQFT) 820
Year Built 2017
Additions 5
Effective Year 2017
Remodeled 0
Interior Adj.
Other Features
Building Total & Improvement Details

Grade C+5 105%
Percentage Complete 100
Total Adjusted Replacement Cost New $364,823
Physical Depreciation (% Bad) 0%
Depreciated Value $335,637
Economic Depreciation (% Bad) 0%
Functional Depreciation (% Bad) 0%
Total Depreciated Value $335,637
Market Area Factor 1.00
Building Value $335,637
Misc Improvements Value
Total Improvement Value $335,637

Assessed Land Value $71,400
   
Assessed Total Value $407,037



Addition Summary 
StoryTypeCodeArea
1.00 Frame Deck 16 36
1.00 Covered Porch 18 72
1.00 Garage 28 400
1.00 Res Frame 2Nd Flr FR02 820
1.00 Res Frm 2Nd Flr Over Garg FR02 400
 
Other Improvements 
 


Building Sketch
Photograph
Building Sketch Building Photo
(Click sketch for bigger image)




Copyright © 2022 Durham County, North Carolina.