Building Summary

Data last updated on: 4/2/2026     Ownership current as of: 3/30/2026     Tax Year: 2026
REID 199576

PIN # 0833-38-4376

Location Address Property Description
701 FANNING WAY VLGINDPK 2/JEF/PH:02/LT#4 8 PL:000162-000122
   
Property Owner Owner's Mailing Address
ANASURI, SABITHA;ANASURI, KANAKA MAHESH
161 WILLEY STREET `
OJAI CA 93023
Parcel
Buildings
Misc Improvements
Land
Deeds
Notes
Sales
Photos
Map
Building Location Address
701 FANNING WAY
Building Description
RESFR-RES-FRM-OR-EQ
Card   of  1
Bldg Type RESIDENTIAL
Units 1
Living Area (SQFT) 2348
Number of Stories 2.00
Style CON-CONVENTIONAL
Foundation 04-P-FOOTING/CRWL-SP
Exterior 08-VINYL/ALUMINUM
Const Type
Heating 05-PACKAGE-HEAT/COOL
Air Cond
Plumbing Baths (Full):   2
Baths (Half):   0
Extra Fixtures:   0
Total Plumbing Fixtures:   6 
Bedrooms 4
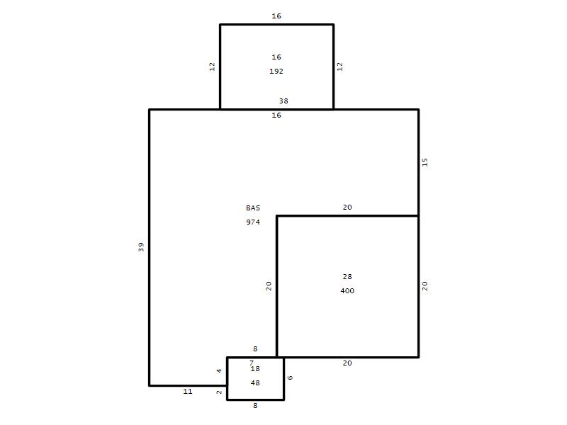
Main Body (SQFT) 974
Year Built 2017
Additions 5
Effective Year 2017
Remodeled 0
Interior Adj.
Other Features
Building Total & Improvement Details

Grade B-5 115%
Percentage Complete 100
Total Adjusted Replacement Cost New $436,044
Physical Depreciation (% Bad) 0%
Depreciated Value $401,160
Economic Depreciation (% Bad) 0%
Functional Depreciation (% Bad) 0%
Total Depreciated Value $401,160
Market Area Factor 1.00
Building Value $401,160
Misc Improvements Value
Total Improvement Value $401,160

Assessed Land Value $72,000
   
Assessed Total Value $473,160



Addition Summary 
StoryTypeCodeArea
1.00 Frame Deck 16 192
1.00 Covered Porch 18 48
1.00 Garage 28 400
1.00 Res Frame 2Nd Flr FR02 974
1.00 Res Frm 2Nd Flr Over Garg FR02 400
 
Other Improvements 
 


Building Sketch
Photograph
Building Sketch Building Photo
(Click sketch for bigger image)




Copyright © 2022 Durham County, North Carolina.