Building Summary

Data last updated on: 3/31/2026     Ownership current as of: 3/26/2026     Tax Year: 2026
REID 199706

PIN # 0834-60-6779

Location Address Property Description
4610 MILLER DR SWANNS MILL SF/PH:01/LT#1 9 PL:000162-000160
   
Property Owner Owner's Mailing Address
PLOPINIO, DAVE ISIDORE E;PLOPINIO, MARIA SHERYL
4610 MILLER DR
DURHAM NC 27704
Parcel
Buildings
Misc Improvements
Land
Deeds
Notes
Sales
Photos
Map
Building Location Address
4610 MILLER DR
Building Description
RESFR-RES-FRM-OR-EQ
Card   of  1
Bldg Type RESIDENTIAL
Units 1
Living Area (SQFT) 2048
Number of Stories 2.00
Style CON-CONVENTIONAL
Foundation 03-CONTINOUS-SLAB
Exterior 08-VINYL/ALUMINUM
Const Type
Heating 05-PACKAGE-HEAT/COOL
Air Cond
Plumbing Baths (Full):   2
Baths (Half):   1
Extra Fixtures:   0
Total Plumbing Fixtures:   8 
Bedrooms 4
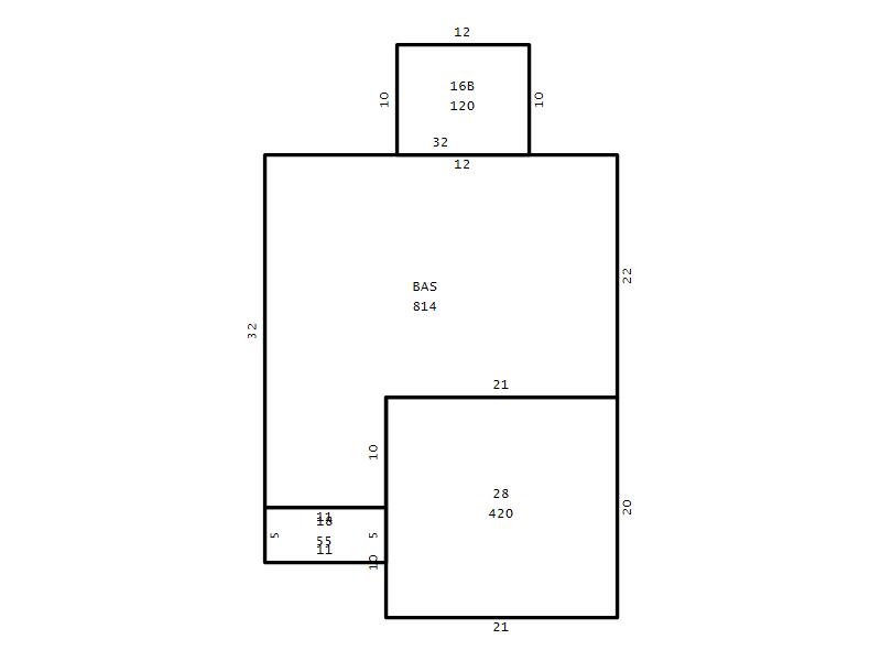
Main Body (SQFT) 814
Year Built 2005
Additions 5
Effective Year 2005
Remodeled 0
Interior Adj.
Other Features
Building Total & Improvement Details

Grade C+5 105%
Percentage Complete 100
Total Adjusted Replacement Cost New $361,451
Physical Depreciation (% Bad) 0%
Depreciated Value $292,775
Economic Depreciation (% Bad) 0%
Functional Depreciation (% Bad) 0%
Total Depreciated Value $292,775
Market Area Factor 1.00
Building Value $292,775
Misc Improvements Value
Total Improvement Value $292,775

Assessed Land Value $64,500
   
Assessed Total Value $357,275



Addition Summary 
StoryTypeCodeArea
1.00 Concrete Slab 16B 120
1.00 Covered Porch 18 55
1.00 Garage 28 420
1.00 Res Frame 2Nd Flr FR02 814
1.00 Res Frm 2Nd Flr Over Garg FR02 420
 
Other Improvements 
 


Building Sketch
Photograph
Building Sketch Building Photo
(Click sketch for bigger image)




Copyright © 2022 Durham County, North Carolina.