Building Summary

Data last updated on: 3/31/2026     Ownership current as of: 3/26/2026     Tax Year: 2026
REID 199717

PIN # 0834-61-7336

Location Address Property Description
4716 MILLER DR SWANNS MILL SF/PH:01/LT#1 1 PL:000162-000163
   
Property Owner Owner's Mailing Address
ANAZIA, ERIC;ANAZIA, JESSICA ROGERS
4716 MILLER DR
DURHAM NC 27704
Parcel
Buildings
Misc Improvements
Land
Deeds
Notes
Sales
Photos
Map
Building Location Address
4716 MILLER DR
Building Description
RESFR-RES-FRM-OR-EQ
Card   of  1
Bldg Type RESIDENTIAL
Units 1
Living Area (SQFT) 3104
Number of Stories 2.00
Style CON-CONVENTIONAL
Foundation 03-CONTINOUS-SLAB
Exterior 08-VINYL/ALUMINUM
Const Type
Heating 05-PACKAGE-HEAT/COOL
Air Cond
Plumbing Baths (Full):   2
Baths (Half):   1
Extra Fixtures:   0
Total Plumbing Fixtures:   8 
Bedrooms 4
Main Body (SQFT) 1352
Year Built 2004
Additions 5
Effective Year 2004
Remodeled 0
Interior Adj.
Other Features
Building Total & Improvement Details

Grade C+5 105%
Percentage Complete 100
Total Adjusted Replacement Cost New $462,017
Physical Depreciation (% Bad) 0%
Depreciated Value $369,614
Economic Depreciation (% Bad) 0%
Functional Depreciation (% Bad) 0%
Total Depreciated Value $369,614
Market Area Factor 1.00
Building Value $369,614
Misc Improvements Value
Total Improvement Value $369,614

Assessed Land Value $65,500
   
Assessed Total Value $435,114



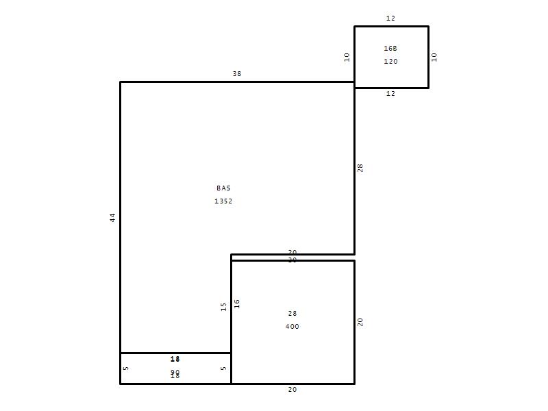
Addition Summary 
StoryTypeCodeArea
1.00 Concrete Slab 16B 120
1.00 Covered Porch 18 90
1.00 Garage 28 400
1.00 Res Frame 2Nd Flr FR02 1352
1.00 Res Frm 2Nd Flr Over Garg FR02 400
 
Other Improvements 
 


Building Sketch
Photograph
Building Sketch Building Photo
(Click sketch for bigger image)




Copyright © 2022 Durham County, North Carolina.